EasyManua.ls Logo

Philips JL2.1E - SSB Component Circuits

Philips JL2.1E
254 pages
Print Icon
To Next Page IconTo Next Page
To Next Page IconTo Next Page
To Previous Page IconTo Previous Page
To Previous Page IconTo Previous Page
Loading...
76JL2.1E AA 7.
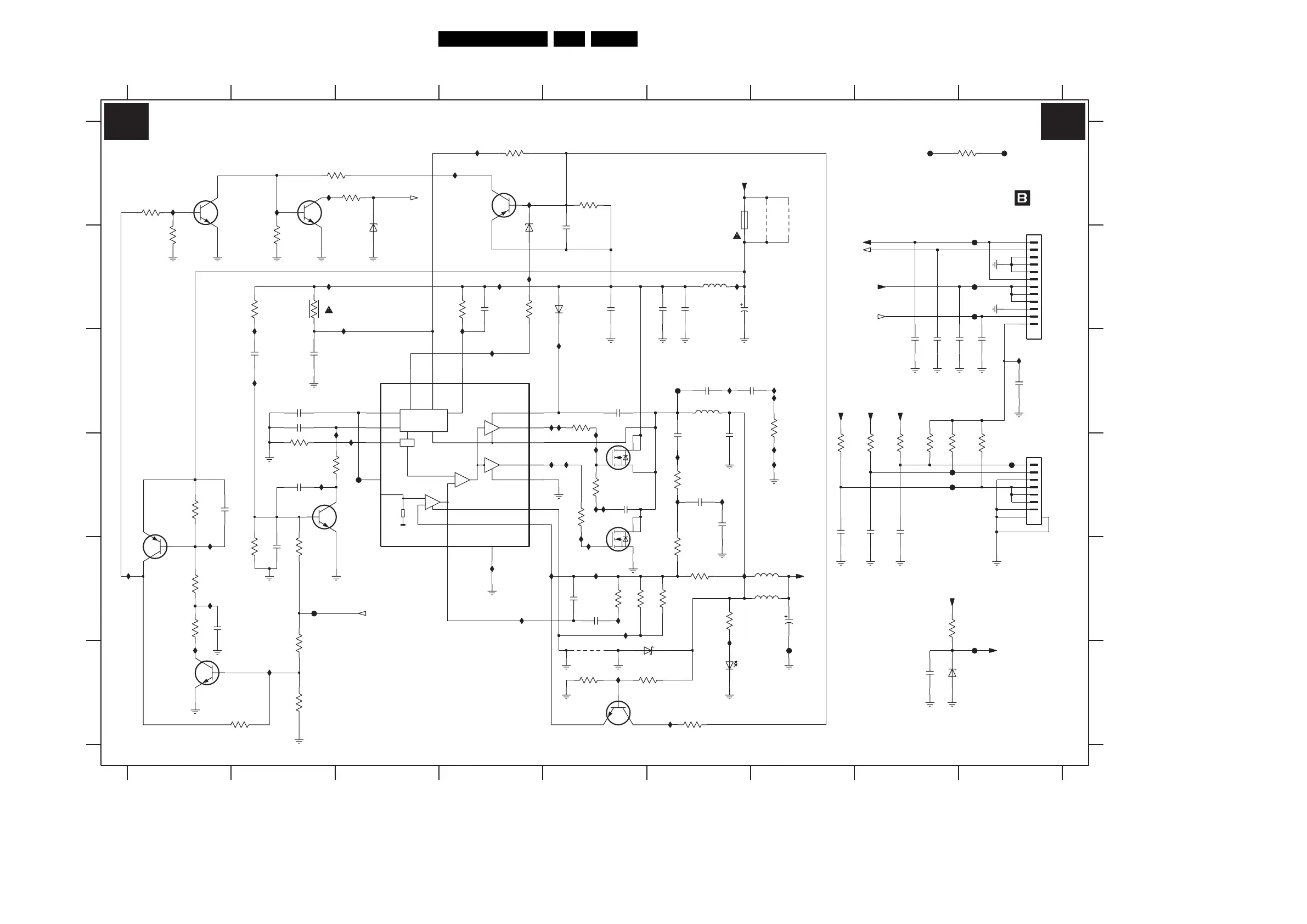
Circuit Diagrams and PWB Layouts
Interface Panel DC / DC
AB AB
OSC
Monitor
Protection & Ref
VREF
SS
OSC
EAREF
COMP
NC
VFB
GND
PGND
LGATE
PHASE
HGATE
BOOT
OCSET
VCC
PGOOD
ID57 F1
ID58 B4
ID59 C5
ID60 D5
ID61 E5
ID62 D5
ID63 B6
ID64 C7
ID65 F6
ID68 C9
ID69 E4
ID70 E4
ID71 C6
ID72 D5
ID73 D5
ID74 D5
ID75 D5
ID76 E5
ID77 D5
ID78 D6
ID79 B2
ID80 B3
ID81 D2
ID82 C7
ID83 D7
ID84 D7
ID37 E5
ID38 E6
ID39 E4
ID40 E5
ID41 A4
ID42 A4
ID43 A2
ID44 B4
ID45 D3
ID46 E1
ID47 E1
ID48 E1
ID49 F2
ID50 A1
ID51 A4
ID52 C4
ID53 E5
ID54 F5
ID55 F6
ID56 A2
FD22 B9
FD23 E2
FD24 F7
FD25 B9
FD26 B9
FD27 D9
FD28 D9
FD29 A8
FD30 A9
FD55 D9
FD62 F9
ID30 D3
ID31 C2
ID32 C4
ID33 C5
ID34 C2
ID35 D6
ID36 D6
INTERFACE PANEL
6D01 B4
6D02 B5
6D03 F6
6D04 F6
6D06 B3
6D62 F8
7D04 C3
7D05-1 D5
7D05-2 E5
7D06-1 D2
7D06-2 F5
7D08-1 A2
7D08-2 A4
7D09 A1
7D10-1 F1
7D10-2 D1
9D81 A7
9D82 A7
9D83 F5
FD20 C6
FD21 D3
TO 1D40
RES
CONVERTER
3D47 E1
3D48 E1
3D49 D1
3D50 A1
3D51 B1
3D52 D2
3D53 D5
3D54 E6
3D55 D8
3D56 D8
3D57 D8
3D58 D8
3D59 D9
3D60 D7
3D62 E8
5D11 C6
5D12 E7
5D13 E7
5D14 B6
DISPLAY
3D29 D2
3D30 D5
3D31 D6
3D32 E6
3D33 E2
3D34 E5
3D35 E6
3D36 E5
3D37 E6
3D38 F5
3D39 F6
3D40 F6
3D41 E2
3D42 A5
3D43 B4
3D44 F2
3D45 F2
3D46 F2
2D55 C9
2D56 D5
2D57 D2
2D58 D8
2D59 D8
2D60 D7
2D61 C9
2D62 F8
3999 A9
3D20 A4
3D21 A3
3D22 B2
3D23 A3
3D24 B2
3D25 B2
3D26 B4
3D27 C7
3D28 C5
6789
12345
2D38 C7
2D39 C2
2D40 C5
2D41 C2
2D42 D6
2D43 D6
2D44 D6
2D45 E2
2D46 E5
2D47 E5
2D48 E7
2D49 D6
2D50 E1
2D51 D1
2D52 C8
2D53 C8
2D54 C8
2D10 B6
2D30 B5
2D31 B4
2D32 B5
2D33 B6
2D34 B6
2D35 C2
2D36 C2
2D37 C6
FRAME-50/60
12V/5V
RES
SSB
RES
RES
TO
12345
RES
RES
ON/OFF
6789
A
B
C
D
E
F
A
B
C
D
E
F
1D00 A6
1D40 B9
1D55 D9
3n3
2D56
10R
3D25
ID32
22n
2D42
3D50
10K
10u
5D11
10K
3D49
3D30
2R2
STPS2L30A
ID40
6D04
ID37
8204 000 8423.4
FD26
2D53
1n0
FD28
FD55
1n0
2D61
22u
2D48
220R
16V
5D13
ID74
2
6
1
ID73
FD24
7D08-1
BC847BPN
ID71
ID53
ID78
ID52
ID30
7D10-2
BC847BPN
3D45
47K
3D44
10K
1n0
2D31
ID76
100n
2D30
3D42
10K
3D54
680R
BZX384-C9V1
6D01
TLMG3100
6D03
6D02
BAS316
22u
2D34
ID49
4
5
6
7
89
1D55
BM07B-SRSS-TBT
1
2
3
10K
3D20
ID43
470p
2D46
FD30
6
4
3
100R
3999
SI4936ADY
7D05-2
5
2D36
3D51
1u0
FD22
10K
10R
3D27
ID44
3D26
1K0
ID51
3D52
100R
2
13
9
10
4
15
6
112
5
8
7
11
14
16
3
FD25
L6910
7D04
ID38
BZX384-C3V3
6D62
1n0
2D62
2D33
22u
3D47
100R
2D44
10n
2D57
10n
100K3D29
3D62
100R
ID75
2D51
100n
2D50
1u0
ID77
GND5V
ID72
ID70
ID69
3D23
100R
ID42
3D33
10K
10K
3D40
3D48
10K
2D10
22u 16V
FD20
100n
2D52
1K0
3D32
6K8
3D31
FD29
9
13
14
22u
2D43
1
10
11
12
2
3
4
5
6
7
8
B12B-PH-SM4-TBT(LF)
1D40
ID36
10n
2D49
5
3
4
ID54
BC847BS
7D06-2
47K
3D24
ID31
ID34
ID68
GND5V
FD27
1%1K0
3D34
4R7
3D53
RES
9D81
3D41
10K
ID39
ID50
4K7
3D37
2D55
1n0
2D38
1n0
100n
2D54
1n0
2D37
ID41
3D21
10K
10K
3D22
ID46
4K7
3D39
ID48
2D58
1n0
3D55
100R
BC847BW
7D09
100n
2K7
3D36
ID62
2D35
ID61
ID60
ID59
BZX384-C5V6
6D06
ID56
ID35
100R
3D59
100R
3D57
FD62
2D59
1n0
100n
2D32
GND5V
100n2D41
5D14
10u
6
1
ID33
BC847BS
7D06-1
2
ID47
ID55
GND5V
GND5V
10n
2D45
3D56
100R
GND5V
3D43
10K
9D82
FD23
RES
420
1D00
3AT
ID64
ID63
GND5V
5D12
220R
5
3
4
9D83
7D08-2
BC847BPN
3D35
3K9
1%
ID65
100R
3D60
10R
3D28
2D40
100n
2D39
2D47
1n0
FD21
100n
ID58
ID45
ID57
3D46
470K
BC847BPN
7
8
2
1
7D10-1
SI4936ADY
7D05-1
100R
3D58
2D60
1n0
ID83
ID84
ID81
ID82
ID79
ID80
OS-DRIVE
1K0
3D38
+5VDISP
ENABLE5V
SUPPLY-FAULT
+12VS
+12VS
+5VDISP
+3V3
+3V3
+3V3
+3V3
+5VDISP
SUPPLY-FAULT
ENABLE5V
F_15710_021.eps
130905

Table of Contents

Related product manuals