EasyManua.ls Logo

Philips JL2.1E - Page 80

Philips JL2.1E
254 pages
Print Icon
To Next Page IconTo Next Page
To Next Page IconTo Next Page
To Previous Page IconTo Previous Page
To Previous Page IconTo Previous Page
Loading...
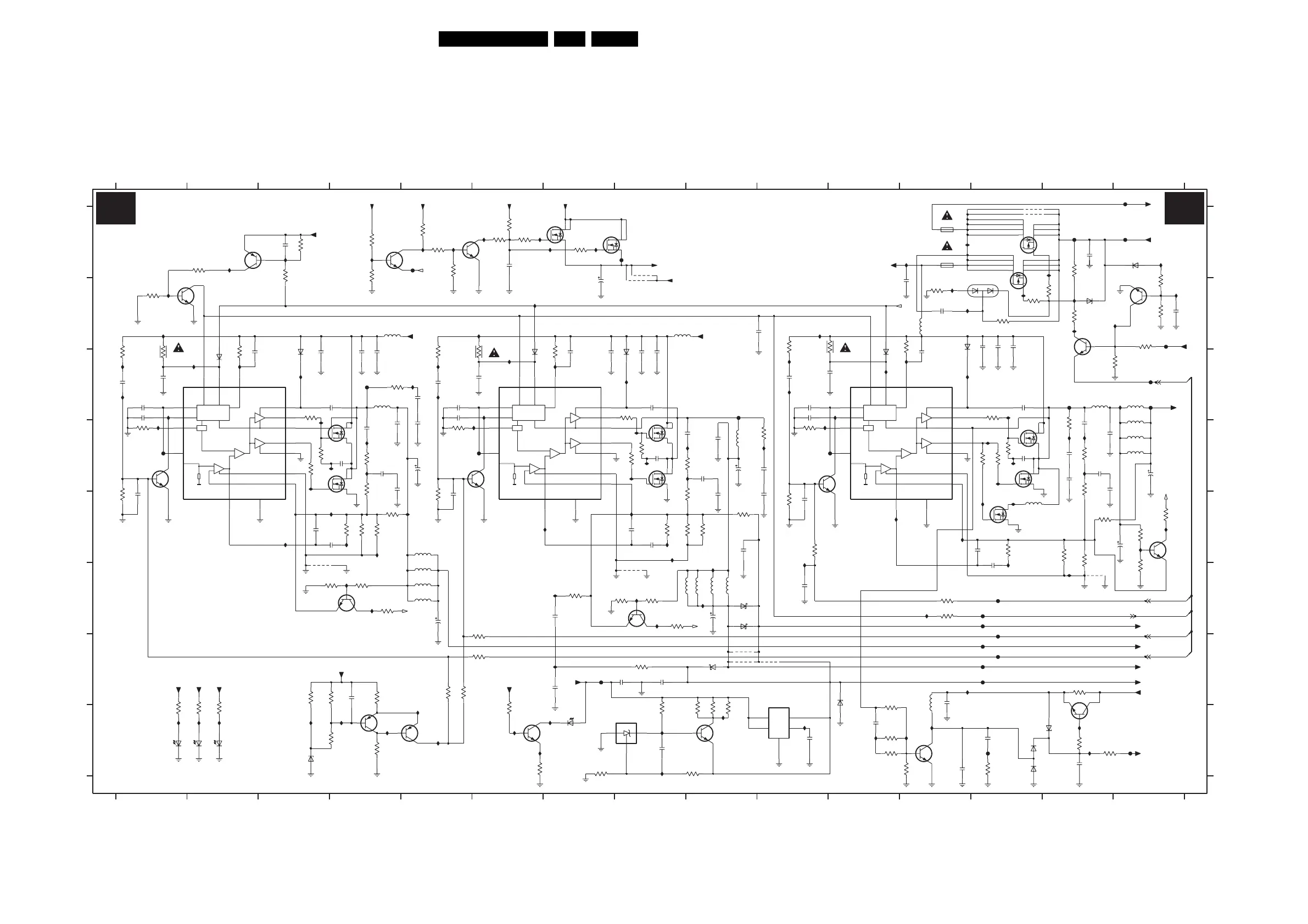
80JL2.1E AA 7.
Circuit Diagrams and PWB Layouts
SSB: DC / DC
OSC
Monitor
Protection & Ref
VREF
SS
OSC
EAREF
COMP
NC
VFB
GND
PGND
LGATE
PHASE
HGATE
BOOT
OCSET
VCC
PGOOD
OUTIN
INH BP
COM
OSC
Monitor
Protection & Ref
VREF
SS
OSC
EAREF
COMP
NC
VFB
GND
PGND
LGATE
PHASE
HGATE
BOOT
OCSET
VCC
PGOOD
OSC
Monitor
Protection & Ref
VREF
SS
OSC
EAREF
COMP
NC
VFB
GND
PGND
LGATE
PHASE
HGATE
BOOT
OCSET
VCC
PGOOD
56789101112131415
1234
IUB5 H5
IUB7 E13
IUB8 E13
A
B
C
D
E
F
G
H
A
B
C
D
E
2U12 E8
2U13 E8
2U14 C5
2U15 C5
2U16 C12
2U17 B13
2U18 C10
2U19 C10
2U20 C8
2U21 E13
2U22 C1
2U23 C5
2U24 C10
F
G
H
1U01 A12
1U04 A12
2U01 C2
2U02 C4
2U03 C1
2U04 C1
2U05 C1
2U06 C3
1234
2U36 C8
2U37 D4
2U38 D9
5678910
0V
(0V)
IU85 E15
IUB3 H5
IUB4 H4
2U50 A14
2U51 E9
2U52 D4
2U53 D8
2U54 D14
2U55 D4
2U56 D9
2U57 D14
2U58 B12
2U59 D15
2U60 F5
2U25 E1
2U26 E5
2U27 E10
2U28 C13
2U29 C10
2U30 E13
2U07 E4
2U08 E3
2U09 C6
2U10 C7
2U11 C7
2U39 D14
2U40 G8
2U41 G8
2U42 B12
2U43 D14
2U44 E9
11 12 13 14 15
(Reserved)
2U87 D4
2U88 D5
2U89 D9
2U90 E14
2U91 F10
2U92 H10
2UB1 G4
3U01 B1
3U02 A2
3U03 A3
3U04 E14
3U05 E4
3U06 E42U61 F9
2U62 A6
2U63 B7
2U71 B15
2U72 B10
2U73 D5
2U31 C4
2U32 C4
2U33 C8
2U34 C13
2U35 C13
3U19 C5
3U20 B10
3U21 E1
3U22 E5
3U23 E10
3U24 G6
3U25 F6
3U26 F12
3U27 E8
3U28 E14
3U29 E9
3U30 E14
3U31 D10
3U32 B10
3U33 D5
2U79 H11
2U80 H12
2U45 D4
2U46 A3
2U47 H8
2U48 F7
2U49 G7
1%
RES
RES
(Reserved)
3U07 C1
3U08 C6
3U09 C7
3U10 E8
3U11 E9
3U12 E42U74 C5
2U75 D14
2U76 D14
2U77 E10
2U78 D10
12V/3V3
12V/2V5
RES
3U18 C1
3U50 D13
3U51 F12
3U52 B15
3U53 B15
3U54 C4
3U55 D14
3U56 D10
3U57 A5
3U58 A5
3U59 A6
3U60 A6
3U61 A3
3U62 H8
3U63 H9
3U64 H93U34 B15
3U35 C14
3U36 H7
3U37 D4
3U38 D8
3U39 D14
2U82 H13
2U83 G12
2U84 H14
2U85 D8
2U86 D13
3U79 E15
3U80 E15
3U81 A5
3U82 A4
3U83 A4
3U84 B12
3U85 G11
3U86 H11
3U87 H11
3U88 H12
3U89 G14
3U90 H13
3U91 H14
3U95 B13
3U96 D13
CONVERTOR
RES
CONVERTOR
3U13 E4
3U14 B12
3U15 D1
3U16 E13
3U17 C2
3U48 D8
3U49 C13
3UB2 G5
3UB3 G3
3UB4 G3
3UB5 G4
3UB6 H3
3UB7 H4
5U01 B4
5U02 B8
5U03 B12
5U05 C4
5U06 C14
5U09 C15
5U10 F5
5U11 F9
5U12 C15
3U65 H9
3U66 H6
3U67 H6
3U68 H2
3U69 H2
3U70 D133U40 D4
3U41 E8
3U42 D14
3U43 B14
3U44 A14
CONVERTOR
1%
DC/DC
B1 B1
3U76 F8
3U77 F8
3U78 F15
6U05 F9
6U06 F9
6U07 G9
6U11 B14
6U12 A15
6U14 C2
6U15 C6
6U16 C11
6U17 G11
6U18 B12
6U19 H14
6U20 H13
6U21 H13
6U22 H1
6U23 H2
3U97 D3
3U98 D8
3UA0 F7
3UA1 G8
3UA2 H14
3UA3 A7
3U45 C3
3U46 D3
3U47 C8
RES
+5V2S SWITCH
12V/1V2
3UB1 G5
7U08-2 F7
7U09-1 D10
7U09-2 E15
7U10-1 D1
7U10-2 F4
7U11-1 A6
7U11-2 A4
7U13-1 A7
7U13-2 A8
7U14-1 B14
7U14-2 B15
7U15 A14
7U16 B13
7U17 H8
7U18 H9
5U13 D15
5U14 D15
5U15 E5
5U16 F5
5U17 F8
5U18 F9
3U71 H9
3U72 F4
3U73 F4
3U74 F4
3U75 F8
RES
1%
+2V5D STABILIZER
6U01 C3
6U02 C8
6U03 B12
9U07 B8
9U08 A8
9U09 G9
9U10 G9
AU01 D1
AU02 D5
AU03 D10
FU01 A15
FU03 C15
FU04 G7
FU05 G13
FU06 A5
FU07 F13
FU08 G13
FU09 G13
6U24 H2
6U25 H7
6UB1 H3
7U01-1 D4
7U01-2 E4
7U02-1 D8
3UA4 A6
3UA5 B14
3UA6 B13
3UA7 E10
3UA8 H1
1%
RES
1%
7U06 C11
7U07 E13
7U08-1 D5
IU02 B14
IU03 C2
IU04 C1
IU05 C2
IU06 C3
IU07 C1
IU08 E4
IU09 F12
IU10 D3
IU11 C6
IU12 C5
IU13 C7
IU14 C10
IU15 C11
IU16 C12
7U19 G10
7U20-1 B1
7U20-2 A3
7U21 H12
7U22 H14
7U23 H6
5U19 F9
5U20 F5
5U21 D9
5U22 G12
5U23 E13
RES
RES
RES
9U04 A13
9U05 A13
9U06 G10
IU30 E6
IU31 E3
IU32 E3
IU33 B15
IU34 B15
IU35 B14
IU36 C15
IU37 E5
IU38 E4
IU39 E8
IU40 F9
IU41 F9
IU42 A5
IU43 A7
IU44 D8
FU10 F13
FU11 C15
FU12 C4
FU13 C9
FU14 C14
FU15 C15
7U02-2 D8
7U03-1 D13
7U03-2 D13
7U04 C1
7U05 C6
RES
VTUN GENERATOR
12V SWITCH
FU21 H13
FU22 A14
FU23 A15
IU58 H14
IU59 A7
IU60 A6
IU61 A2
IU62 A3
IU63 B6
IU64 B1
IU65 C5
IU66 B6
IU67 C6
IU68 D6
IU69 F4
IU70 F4
IU71 A5
IU72 A4
IU17 C8
IU18 C12
IU19 C10
IU20 C5
IU21 D4
IU22 D14
7UB1-1 H4
7UB1-2 H5
9U01 F3
9U02 F8
9U03 F14
IU28 E11
IU29 E12
(3V4)
0V7
IU84 E15
IU86 D8
IU87 B1
IU88 D10
IU89 H6
IU90 C13
IU91 D13
IU92 F14
IU93 F7
IU94 G7
IU95 A12
IU96 D3
IU97 D8
IU45 A6
IU46 B12
IU47 B12
IU48 H8
IU49 H8
IU50 H7
FU16 A8
FU17 H15
FU18 G13
FU19 F13
FU20 F13
IU56 H12
IU57 G12
IU73 C1
IU74 D1
IU75 E8
IU76 F8
IU77 F8
IU78 C11
IU23 D8
IU24 D4
IU25 D14
IU26 D8
IU27 E8
11V8
(0V)
3V4
(3V4)
0V
(0V)
12V UNDER-VOLTAGE DETECTION
IUA4 H1
IUA5 E4
IUA6 E10
IUA7 H14
IUA9 D13
IU98 D13
IU99 A12
IUA0 A14
IUA1 B13
IUA2 H2
IUA3 H2
IU51 H9
IU52 H10
IU53 H7
IU54 H11
IU55 H12
IUB1 H3
IUB2 H4
IU79 D10
IU80 B10
IU81 D14
IU82 F13
IU83 A15
IU38
9U02
IU03
1n0
2U72
3U81
47K
9U03
IU63
IU92
10u
5U02
IU98
IU99
33p
2U80
IU96
100n
2U20
9U07
IU51
100n
2U09
1
9U01
BC847BS
7U08-1
2
6
GND2V8
IU44
3U26
22K
2U36
GND2V8
IU33
22u
IU86
FU15
100n
2U19
3U83
47K
33K
3U25
470p
2U79
2U29 1n0
IU32
BC847B
7U18
IU10
3U43
47K
6K8
GND3V3
GND2V8
3U39
3U29
6K8
3U55
10R
47K
3U57
IU21
3U28
2K7
5U10
220R
IU61
22K
3UB6
3U20
10K
3UB4
47K
FU05
BC847BW
7U23
IU26
IU72
IU49
10R
3U49
IU48
IU27
GND1V2
IU22
100n
2U18
IU62
IU95
10K
3U61
+12V-DC
IUB8
+12V-DC
IUB7
IUA9
220R
5U23
IU06
100R
IU07
3U91
6U20
BAS316
3U51
1K0
3U14
100R
GND1V2
SI2306DS
7U07
2U42
GND3V3
GND2V8
470n
10u
5U05
100n
2U03
5U12
220R
100K
3U33
6U05
STPS2L30A
4
220R
3U73
7U08-2
BC847BS
5
3
FU20
1
470n
2U91
BC847BS
7U09-1
2
6
IU40
FU17
3U41
1K0
100K
3U15
1%
560R
3U27
GND2V8
IU46
100K
3U60
FU01
3U84
10R
150R
3U63
IU56
1u0
2U83
+1V2
+3V3
BC847BW
7U22
7U13-2
SI4936ADY
5
6
4
3
3U02
10K
BAS316
+5V
6U15
IU85
IU31
IU23
2U75
1n0
1u0
2U22
GND2V8
IU35
1K0
3U71
IU50
100n
2U62
+3V3
680R
3U59
2U51
1u0
IUA0
IU12
2U63
22u 16V
100n
2U89
100u 6.3V
2U71
2K7
3U05
AU03
3U13
1K0
GND1V2
IU70
FU10
FU13
IU41
3U46
6U03
2R2
BAS316
FU19
2U12
100n
100R
3UA1
2
6
1
BC847BS
7U14-1
1u0
2U24
2U08
470p
5U17
220R
3U88
1K0
+2V5D
2U43
10n
IU54
3U23
22K
5U13
220R
10R
3U32
+2V5D
IU36
IU11
7U11-2
BC847BS
FU04
22u 16V
2U37
2U78
1n0
3
2
13
9
10
4
15
6
112
5
8
7
11
14
16
2U39
L6910
7U06
16V22u
22u 16V
2U38
47K
3U58
3U86
470R
3U64
150R
3U90
33R
1K0
3UA6
1K0
3UA4
IU59
SI4835BDY
7U16
GND2V8
IU64
2K7
3U10
4
2
1
3
5
IU57
7U19
LD2985BM25R
6.3V100u
2U88
6U11
BZX384-C12
FU18
IU39
10n
6U06
STPS2L30A
2U25
470p
2U13
22u
2U35
2U74
1n0
2R2
+VTUN
2U31
3U50
22u
IU76
IU79
2n2
+2V5
2U86
2U10
1n0
1K0
3U17
3UA5
1K0
7U10-1
2
6
1
BC847BS
100n
3U76
220R
2U49
IU58
GND3V3
1U01
3AT
420
BC847BPN
7U20-2
5
3
4
22n
2U53
3U67
1K0
3UA2
100K
2U44
3U89
2K2
10n
GND3V3
IU18
3U98
4R7
2U87
2n2
2U23
1u0
IU89
IU53
IU52
2U07
100n
2K7
3U16
47K
470R
3U87
3U34
10n
2U55
100n
2U28
IU60
10n
2U92
BZX384-C27
6U19
2U02
GND1V2
IU09
100n
IU19
100n
2U46
10K
3U03
10K
3U80
IU55
3U48
2R2
6U07
STPS2L30A
IU71
AU02
1n0
2U01
+2V5
1n0
2U16
2U52
22n
GND1V2
IU34
1M0
FU08
BC847BS
2
6
1
3U36
GND3V3
7U11-1
3U22
33K
7U03-1
7
8
2
1
SI4936ADY
6U17
BZX384-C3V3
FU03
2U84
100n
1K0
3U11
3U12
390R
22u
2U32
IU69
IU16
FU06
+5V2
IU66
3U21
IU65
10n
2U56
33K
IU82
5U21
10u
4R7
3U97
100K
3U31
3U44
1M0
GND3V3
2U34
22u
IU37
IU87
1K0
3U04
2U11
100n
100R
3U66
3
4
3UA8
150R
BC847BS
7U09-2
5
2U30
470p
100n
2U04
GND1V2
IU43
47u
5U22
220p
2U82
1K0
3U40
6U02
BAS316
10R
3U54
1K0
3U52
2U40
1u0
BAS316
6U14
5
3
4
1u0
2U58
IU14
BC847BS
7U10-2
3U47
10R
6U01
BAS316
IU42
3U85
1K0
+2V8
IU25
4R7
3U96
7U13-1
SI4936ADY
7
8
2
1
+12VSW
5
6
4
3
1K0
3U62
7U02-2
SI4936ADY
7U15
SI4835BDY
5U18
22u
2U33
1n02U05
220R
2R2
3U70
1K0
3U09
IU74
IU28
FU09
IUA3IUA4 IUA2
2U57
10n
BZX384-C12
6U12
3U75
150R
+1V2
IU77
10K
3U74
IU73
GND1V2
IU80
IU93
IU84
IU94
100R
3U68
3U69
100R
IU15
1n0
2U73
100n
2U15
IU68
8204 000 8362.8
F_15710_026.eps
130905
FU22
FU23
IU02
FU14
BAS316
6U16
6U21
BAS316
IU97
47K
3U82
1n0
2U77
IU45
47K
3U35
22u
150R
3U65
2U61
5U14
220R
IU24
IU91
IU30
IU90
220R
5U09
BAV99 COL
6U18
1
3U38
6K8
7U01-1
SI4936ADY
7
8
2
1n0
2U76
3AT420
1U04
47K
3U18
3U45
10R
10R
3U79
9U04
2U48
1u0
7U21
BC817-25
3U56
10R
3U19
47K
2
6
1
10n
2U27
3U53
BC847BPN
7U20-1
220R
330R
4K7
5U16
3U06
IU75
+12V-DC
13
9
10
4
15
6
1
AU01
12
5
8
7
11
14
16
3
2
7U05
L6910
IU78
IU08
2U60
22u
IU20
6U24
+12V-DC
SML-010MT
3UA7
10K
5U20
220R
2U26
10n
10u
5U03
IU81
9U05
2U50
1u0
1K0
3U42
4
15
6
1
IU04
8
7
11
14
16
3
2
13
9
10
L6910
7U04
12
5
10K
3U01
IUB5
IUB4
IUB3
IUB2
IUB1
220R
5U15
1n0
2U47
9U06
IU83
3U95
100K
2U54
IUA1
FU07
2n2
2U45
10n
7
8
2
1
100n
2U17
PDZ6.8-B
7U02-1
SI4936ADY
6UB1
+12V-DC
2UB1
100n
+12V-DC
100R
3U78
SML-010MT
6U23
3U08
10R
220R
5U11
+12VS
1u0
2U41
5
6
4
3
GND3V3
7U01-2
SI4936ADY
IU67
9U08
6U25
SML-010MT
FU11
IU13
6U22
SML-010MT
7UB1-2
BC857BS
5
3
42
6
1
5U06
10u
7UB1-1
BC857BS
22K
IU05
3U30
2U59
7U03-2
5
6
4
3
22u
IUA7
SI4936ADY
IUA6
IU88
IUA5
1K0
FU21
3UA3
9U10
9U09
100n
2U06
2U14 1n0
100n
2U21
10u
5U01
IU29
3UB5
470R
3U24
33K
IU17
6K8
3U37
BC847BS
7U14-2
5
3
4
FU16
3U07
10R
1K0
3UB3
100K
3UB7
3UB2
22K
22K
3UB1
2
R
IU47
7U17
TS2431
3
A
1
K
1K0
3UA0
3U77
10K
2n2
2U85
6.3V100u
2U90
120R
3U72
FU12
5U19
220R
PROT_DC
ENABLE-3V3
+5V
ENABLE-1V2
+5V2
+5V
POD-MODE
ON-MODE
+12VS
+5V2S
+5V
PROT_DC
PROT_DC
PROT_DC
SUPPLY-FAULT
ENABLE-2V5

Table of Contents

Related product manuals