EasyManua.ls Logo

Philips Q552.2E - Page 101

Philips Q552.2E
204 pages
Print Icon
To Next Page IconTo Next Page
To Next Page IconTo Next Page
To Previous Page IconTo Previous Page
To Previous Page IconTo Previous Page
Loading...
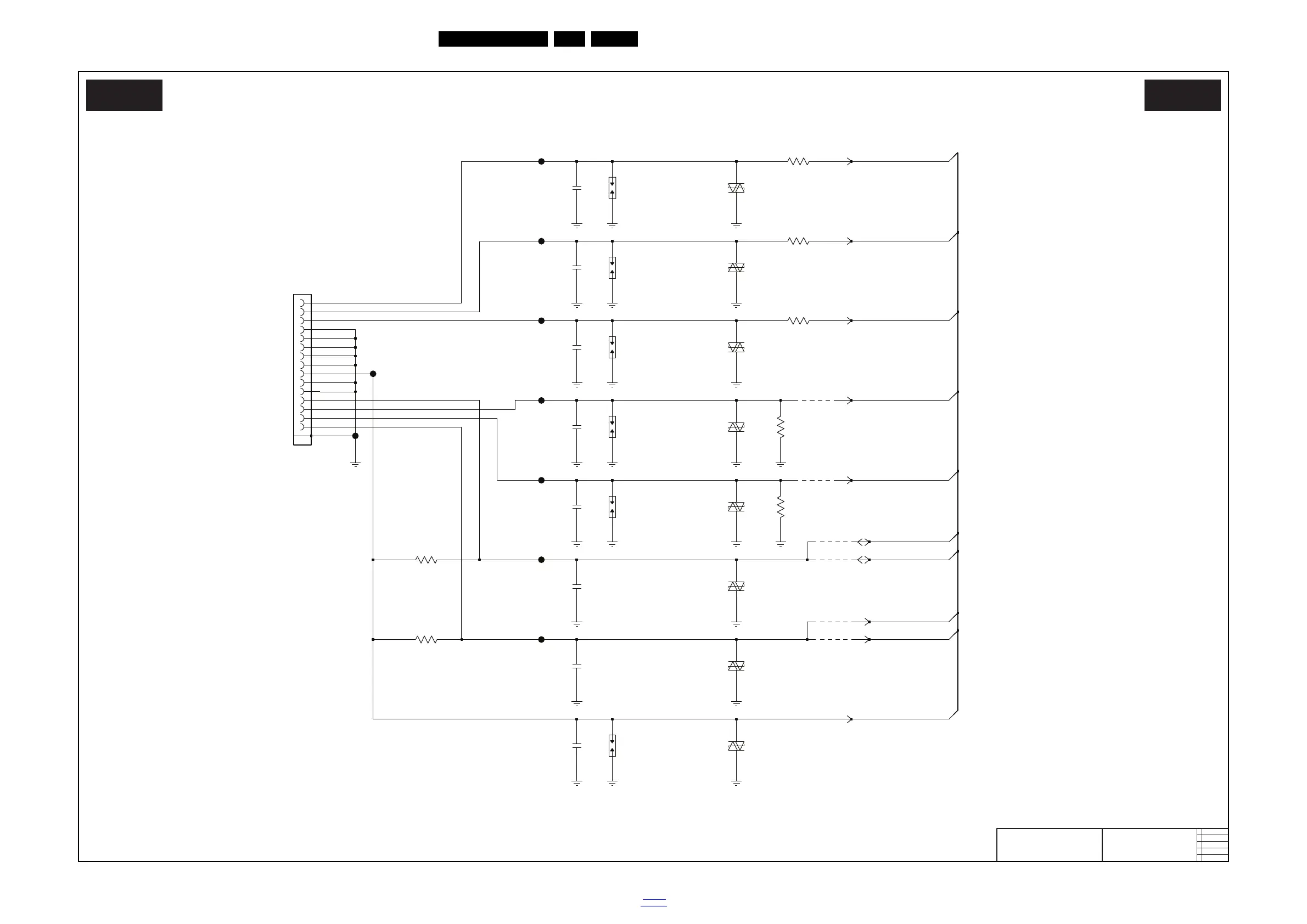
Circuit Diagrams and PWB Layouts
EN 101Q552.2E LA 10.
2011-Jun-01
back to
div. table
VGA
19100_009_110114.eps
110211
VGA
B01I B01I
2010-12-10
4
3139 123 6495
SPB SSB TV550
2K11 4DDR EU
CONNECTOR
VGA
FFC5
9FC6
FFC7
3FC7
18R
18R
3FC6
FFC3
1FC2
RES
12V
CDS4C12GTA
6FC8
1FC6
3
4
5
6
7
8
9
1617
1216-02D-15L-2EC
1
10
11
12
13
14
15
2
1E05
RES
9FC4
9FC1
RES
9FC2
FFC4
FFC8
FFC1
12V
RES
CDS4C12GTA
6FC6
RES
10K
3FC1
3FC2
10K
RES
RES
12V
CDS4C12GTA
6FC2
3FC4
4K7 4K7
3FC3
100p
2FC3
100p
RES RES 2FC1RES 2FC2
100p
6FC3
RES
12V
6FC5
CDS4C12GTA
RES
12V
CDS4C12GTA
12V
CDS4C12GTA
6FC4
RES RES
12V
CDS4C12GTA
6FC1
9FC5
47p
2FC4
1FC4
3FC5
18R
2FC5
47p
1FC5 1FC3
2FC8
47p
FFC2
1FC1
9FC3
47p
2FC7
47p
2FC6
FFC9
6FC7
CDS4C12GTA
12V
FFC6
RES
VGA-SCL-EDID
VGA-SDA-EDID
R-VGA
H-SYNC-VGA
V-SYNC-VGA
G-VGA
B-VGA
+5V-VGA
VGA-SDA-EDID-HDMI
VGA-SCL-EDID-HDMI

Table of Contents

Related product manuals