EasyManua.ls Logo

Philips Q552.2E - Page 141

Philips Q552.2E
204 pages
Print Icon
To Next Page IconTo Next Page
To Next Page IconTo Next Page
To Previous Page IconTo Previous Page
To Previous Page IconTo Previous Page
Loading...
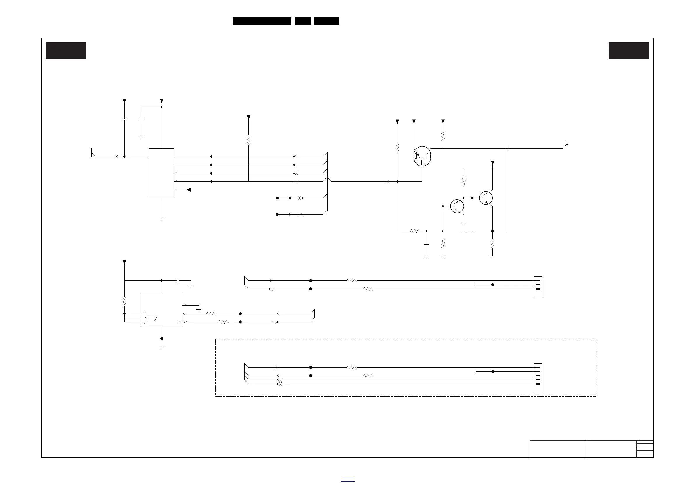
Circuit Diagrams and PWB Layouts
EN 141Q552.2E LA 10.
2011-Jun-01
back to
div. table
PNX85500 Control
19101_014_110504.eps
110504
PNX85500-Control
B01E B01E
2011-02-01
2
3139 123 6519
SPB SSB
TV550 2K11 4DDR EU SD
D
C
S
W
HOLD
VSS
Q
VCC
SCL
ADR
0
1
2 SDA
WC
MAIN NVM
FOR
DEBUG
DEBUG ONLY
SDA
USE ONLY
LEVEL
SHIFTED
SCL
5
3
4
DEBUG / RS232 INTERFACE
UP
BC847BPN(COL)
7F54-2
RES
BC847BPN(COL)
7F54-1 RES
2
6
1
2F53
1u0
RES
RES
+3V3
+3V3
3F66
10K
7F53
PDTA114EU
RES
IF58
FF58
3F64
100R
IF56
IF55
IF57
10K
RES
6
5
7
2
1
84
3
3F69
Φ
512 K
FLASH
M25P05-AVMN6
7F52
FF04
IF62
IF61
FF29
+3V3
FF57
FF65
3F68
47K
RES
67
FF56
1F51
1
2
3
4
5
RES
FF63
FF62
100R
3F62
1F52
1
2
3
4
5
RES
10K
3F58
100R
3F60
3F59
IF59
100R
FF55
IF51
+3V3
9CH0
6
5
84
7
7F58
EEPROM
Φ
1
2
3
(8K × 8)
RES
3F52
10K
1K0
3F54
100p
2F49
RES
+5V
3F67
10K
2F52
100n
3F53
10K
FF61
100R
+3V3-STANDBY
3F63
FF66
3F65
100R
FF64
IF53
IF54
IF52
IF50
RES
+3V3-STANDBY
+3V3-STANDBY
100n
2F58
SPI-PROG
SDM
RESET-STBYn
SPI-PROG
+3V3-STANDBY
BOOST-PWM
BACKLIGHT-BOOST
SDA-UP-MIPS
SCL-UP-MIPS
SCL-SSB
SDA-SSB
TXD-UP
RXD-UP
PNX-SPI-CLK
PNX-SPI-SDOPNX-SPI-SDI
PNX-SPI-CSBn
PNX-SPI-WPn

Table of Contents

Related product manuals