EasyManua.ls Logo

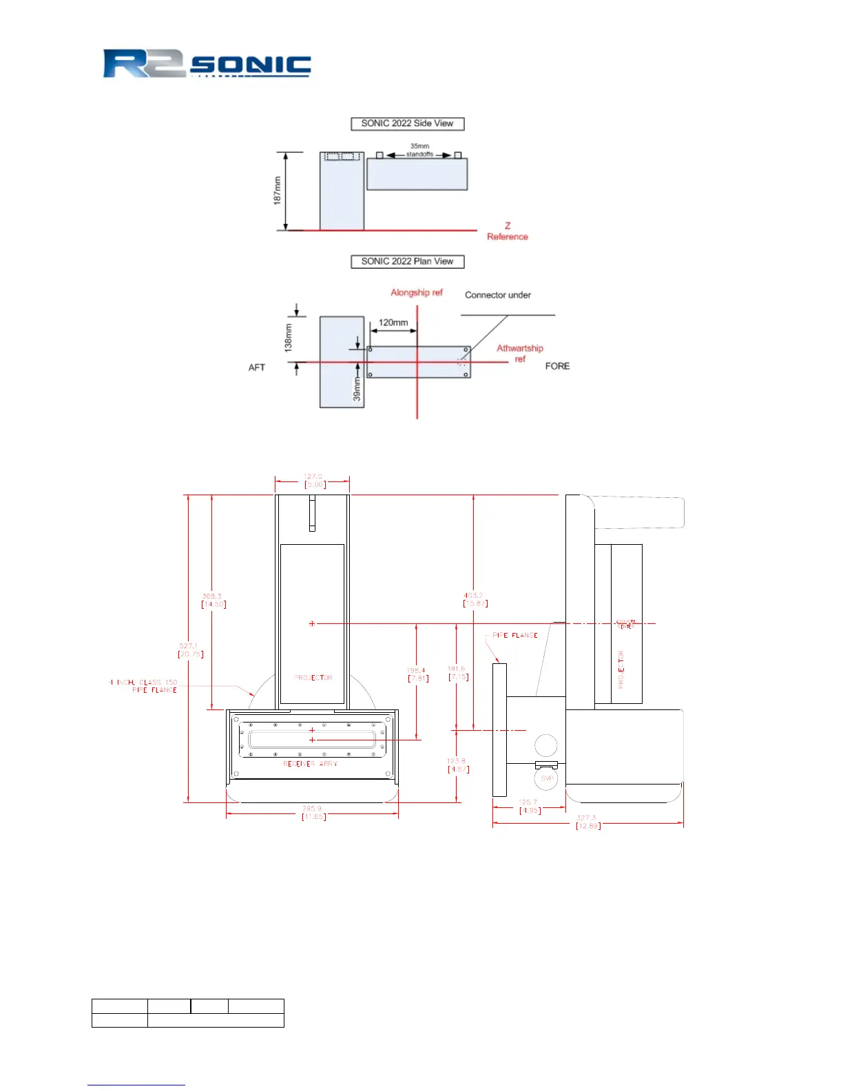
R2Sonic 2022 - Figure 4: Sonic 2022 Acoustic Centre; Figure 5: Sonic 2022 Acoustic Centre as Mounted

R2Sonic 2022
133 pages
Print Icon
To Next Page IconTo Next Page
To Next Page IconTo Next Page
To Previous Page IconTo Previous Page
To Previous Page IconTo Previous Page
Loading...
Page 20 of 133
Version 3.0 Rev r000
Date 25-08-2010
Part No. 96000001
Figure 4: Sonic 2022 Acoustic Centre
Figure 5: Sonic 2022 Acoustic Centre as Mounted
Centre of Flange to Alongship offset = 181.6mm
Top of Flange to Z reference = 327.3mm

Table of Contents

Related product manuals