EasyManua.ls Logo

Rosco RB48 - Page 113

Rosco RB48
174 pages
Print Icon
To Next Page IconTo Next Page
To Next Page IconTo Next Page
To Previous Page IconTo Previous Page
To Previous Page IconTo Previous Page
Loading...
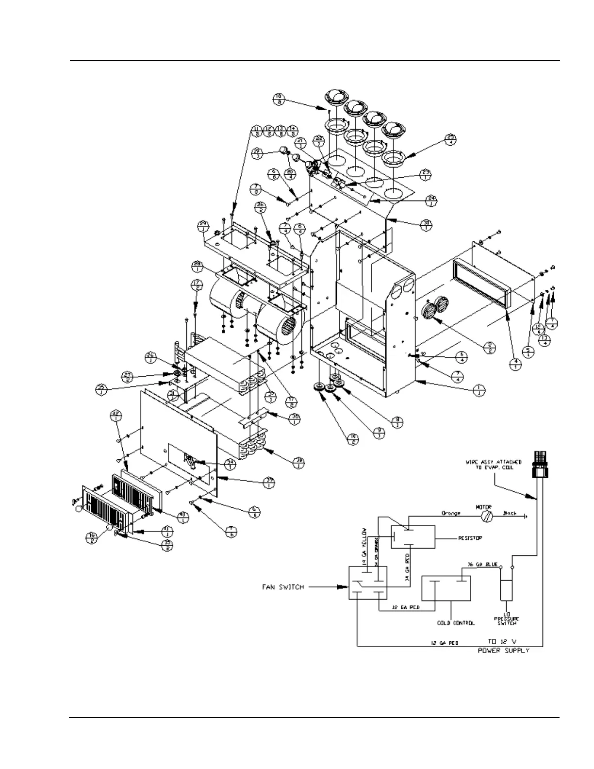
ROSCO - A LeeBoy Company 6. 55 Parts Book
REF.
REV.
RB48 BROOM
38653
0
CAB AIR COND/HEATER KIT

Table of Contents