EasyManua.ls Logo

Rosco RB48 - Engine Sub-Assembly - Perkins

Rosco RB48
174 pages
Print Icon
To Next Page IconTo Next Page
To Next Page IconTo Next Page
To Previous Page IconTo Previous Page
To Previous Page IconTo Previous Page
Loading...
Parts Book 6. 12 ROSCO - A LeeBoy Company
ITEM PART NO. QTY DESCRIPTION
RB48 BROOM
REF.
REV.
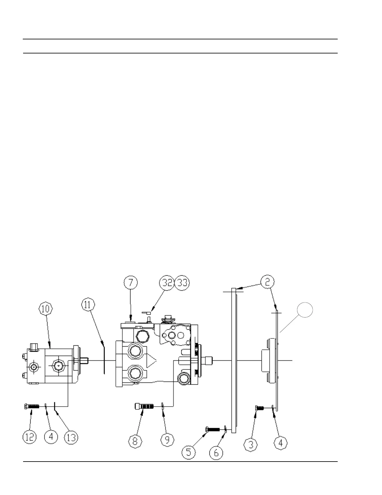
ENGINE SUB-ASSEMBLY - PERKINS
29188
C
1 .............. 38144............ 1.00 ............... ENGINE,PERKINS,1004-42
N/S .......... 38144-01............................... EXHAUST FLANGE
N/S .......... 38144-02............................... FILTER,OIL,PERKINS 1000
N/S .......... 38144-03............................... FILTER,FUEL ELEMENT,PERKINS
N/S .......... 38144-04............................... BELT,FAN/ALT,PERKINS 1000
N/S .......... 38144-05............................... STARTER,PERKINS 1000
N/S .......... 38144-06............................... ALTERNATOR,PERKINS 1000
N/S .......... 38144-07............................... FAN,20.0 SUCKER,PERKINS
N/S .......... 38144-08............................... PULLEY,AUX DRIVE
N/S .......... 38144-10............................... WIRE,TACH/ALTERNATOR
N/S .......... 38144-11............................... WIRE HARNESS,ALTERNATOR
2 .............. 35340............ 1.00 ............... DRIVE PLATE ASSY,SAE 3XB MT
2a ............35340-1................................. FLEX PLATE & COUPL 15T 7/8"OD
3 ..............81219 ............ 8.00 ............... CSSH,.375-24X1.00
4 ..............80162 ............ 10.00 ............. WASHER,SPLIT LOCK,.375
5 .............. 80990............ 12.00 ............. CSHH,M10X1.5X35,CL8.8
6 .............. 80478............ 13.00 ............. WASHER,SPLIT LOCK,M10
7 .............. 37833............ 1.00 ............... PUMP,HYDRO M46 2.8 CIR
8 .............. 80503............ 2.00 ............... CSSH,.500-13X1.75
9 .............. 80164............ 2.00 ............... WASHER,SPLIT LOCK,.500
10 ............ 36642 ............ 1.00 ............... PUMP,1.8CIR,SAEA,W/3.7 PRI DIV
11 ............ 36808 ............ 1.00 ............... ORING,3.237 ID X .103,SAE 152
12 ............ 80226............ 2.00 ............... CSHH,.375-16X1.50,GR5
13 ............ 80142............ 2.00 ............... WASHER,TYPE A PLAIN,.375
2a
TO FACING PAGE

Table of Contents