EasyManua.ls Logo

Samsung Electronics DVM Series - Page 179

Samsung Electronics DVM Series
228 pages
Print Icon
To Next Page IconTo Next Page
To Next Page IconTo Next Page
To Previous Page IconTo Previous Page
To Previous Page IconTo Previous Page
Loading...
1. Product
6
. Installation
Λ
Λ
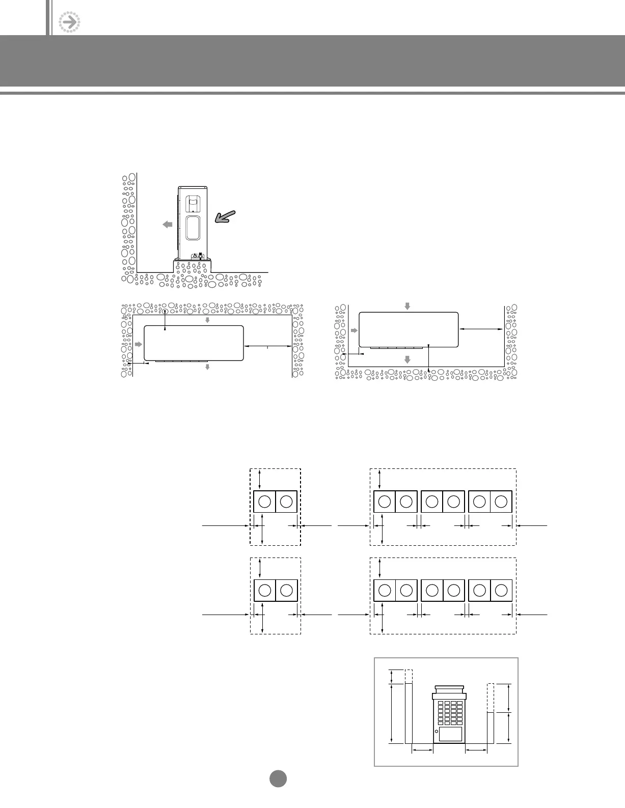
(2) Outdoor unit
1) Onward
Roof top
20 or more
20 or more
Space for piping
and wining
12 or more
12 or more
12 or more
The air inlet faces toward the wall. The air outlet faces toward the wall.
24 or more
Strong wind
Wall
Air outlet
2) Upward (7.5HP or less)
If there are no obstacles around the unit...
If there is an obstacle around the unit...
If an obstacle in front of the outdoor unit is higher than
5ft., the half of additional height should be
added to the S1.
If an obstacle behind the outdoor unit is higher than 2ft.,
the half of additional height should be added to the S2.
S1 S2
5ft.
h1
2ft.
h2
Air inlet
Front
Max. height of obstacle
- Front side : 5ft. or less
- Air inlet side : 2ft. or less
- Right/Left side : No limit
4 or more 4 or more 4 or more
12 or more
Front
20 or
more
Front
12 or more
20 or more 4 or more 4 or more 4 or more
4 or more 4 or more
12 or more
Front
20 or
more
Front
4 or more
20 or more 8 or more 8 or more
4 or more 4 or more
Unit : inch
Space for piping
and wining
5-1.Installation_TM_E_06890 2/27/03 10:15 AM Page 6

Table of Contents

Related product manuals