EasyManua.ls Logo

Samsung Electronics DVM Series - Heat Pump

Samsung Electronics DVM Series
228 pages
Print Icon
To Next Page IconTo Next Page
To Next Page IconTo Next Page
To Previous Page IconTo Previous Page
To Previous Page IconTo Previous Page
Loading...
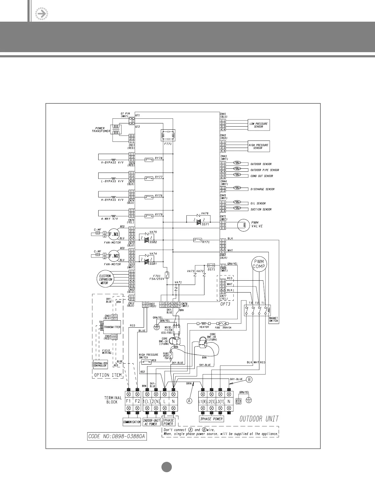
7. Electric circuit diagram
28
. Outdoor unit
ΙΛ
ΙΛ
7-2. Heat pump
(1)
✻✻
050
✻✻
4-2.Outdoor unit_TM_E_06890 2/27/03 10:15 AM Page 28

Table of Contents

Related product manuals