EasyManua.ls Logo

Samsung Electronics DVM Series - 6 Refrigerant System Diagram; Cooling Only

Samsung Electronics DVM Series
228 pages
Print Icon
To Next Page IconTo Next Page
To Next Page IconTo Next Page
To Previous Page IconTo Previous Page
To Previous Page IconTo Previous Page
Loading...
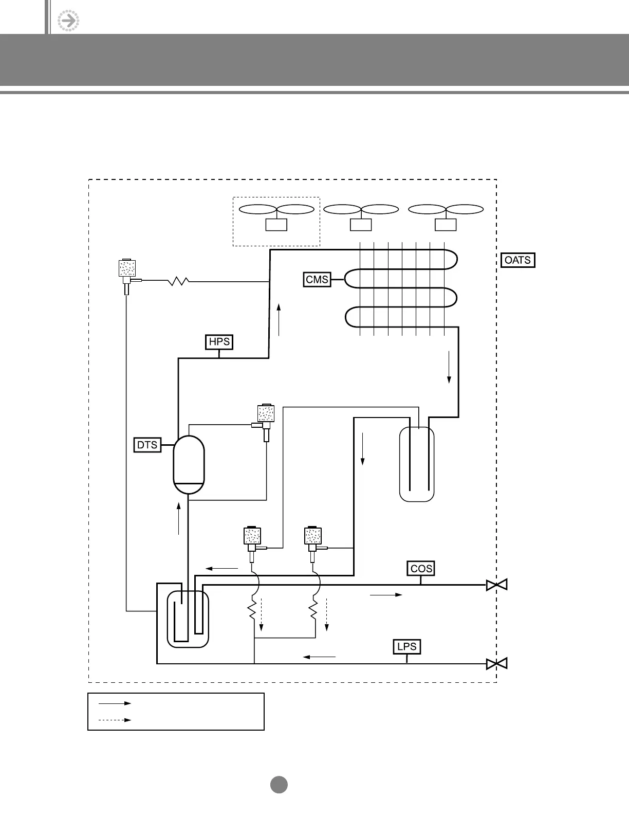
6. Refrigerant system diagram
18
. Outdoor unit
ΙΛ
ΙΛ
6-1. Cooling only
(1)
✻✻
050/070
✻✻
fan
motor
fan
motor
super cooler
temperature
sensor
temperature
sensor
temperature sensor
heat exchanger
high pressure switch
low pressure switch
temperature
sensor
digital
scroll
com-
pressor
solenoid
valve (VBV)
CCH
solenoid valve
(HGBV)
solenoid
valve (LBV)
solenoid valve
(PWM)
receiver
capillary tube
capillary tube
capillary tube
accumulator
flow direction of refrigerant
bypass flow of protection actuated
Note
Supper cooler : For Middle East only
4-1.Outdoor unit_TM_E_06890 2/27/03 10:14 AM Page 18

Table of Contents

Related product manuals