EasyManua.ls Logo

Samsung Electronics DVM Series - Page 165

Samsung Electronics DVM Series
228 pages
Print Icon
To Next Page IconTo Next Page
To Next Page IconTo Next Page
To Previous Page IconTo Previous Page
To Previous Page IconTo Previous Page
Loading...
27
ΙΛ
(3)
✻✻
100
✻✻
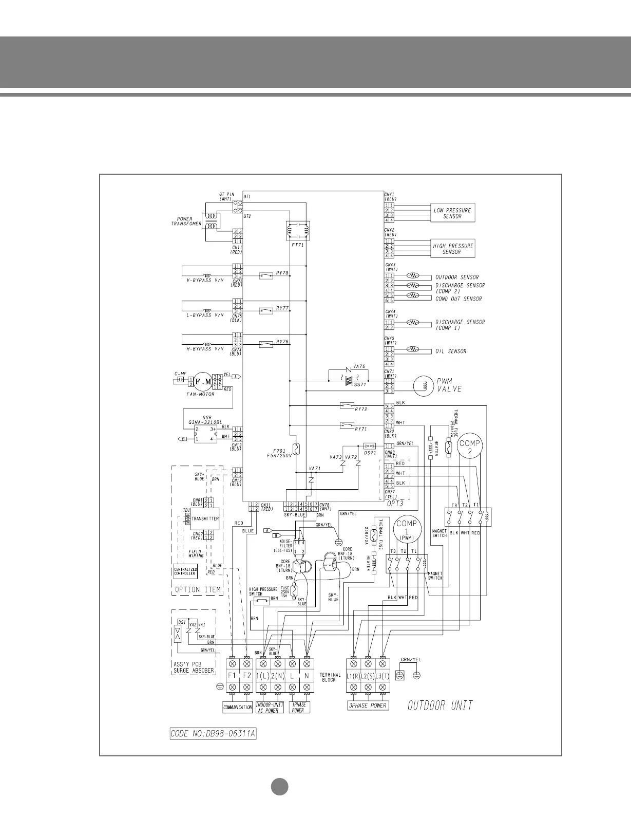
4-2.Outdoor unit_TM_E_06890 2/27/03 10:15 AM Page 27

Table of Contents

Related product manuals