EasyManua.ls Logo

Santerno Sinus Penta - Modelli STAND-ALONE IP20 E IP00 (S12-S52) Classi 5 T E 6 T

Santerno Sinus Penta
97 pages
Print Icon
To Next Page IconTo Next Page
To Next Page IconTo Next Page
To Previous Page IconTo Previous Page
To Previous Page IconTo Previous Page
Loading...
SINUS PENTA
MANUALE UTENTE
BASIC
64/97
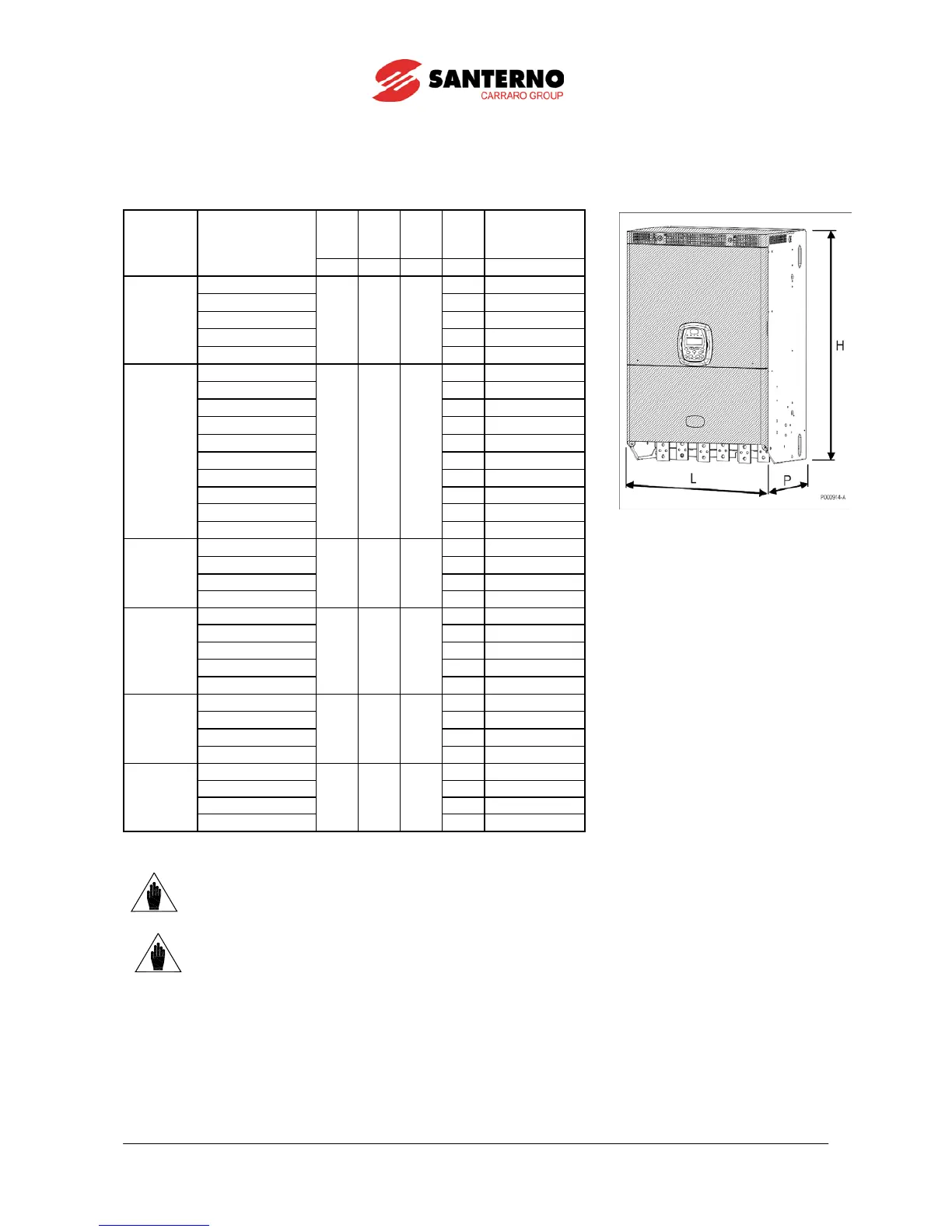
2.3.2.3. MODELLI STAND-ALONE IP20 E IP00 (S12-S52) CLASSI 5T
E
6T
NOTA
Grado di protezione IP20 fino Size S32; IP00 per Size superiori.
NOTA
Per i modelli stand-alone IP54, Box e Cabinet si rimanda alla
Guida all’Installazione
.
Size
MODELLO
SINUS PENTA
L
H
P
Peso
Potenza
dissipata alla
Inom
mm
mm
mm
kg
W
S12 5T
0003
215 401 225
10
160
0004
10
180
0006
10.5
205
0012
10.5
230
0018
10.5
270
S14
0003
270 527 240
17.5
170
0004
17.5
190
0006
17.5
210
0012
17.5
240
0018
17.5
280
0019
17.5
320
0021
17.5
370
0022
18
470
0024
18
550
0032
18.5
670
S22
0042
283 833 353
51
750
0051
51
950
0062
54
1000
0069
54
1200
S32
0076
367 880 400
80
1400
0088
80
1700
0131
84
2100
0164
84
2500
0172
84
N.D.
S42
0181
500 968 409
128
3450
0201
128
3900
0218
136
4550
0259
136
4950
S52
0290
578 968 409
160
5950
0314
160
6400
0368
160
7000
0401
160
7650

Table of Contents

Other manuals for Santerno Sinus Penta

Related product manuals