EasyManua.ls Logo

Scanlab RTC 4 - Page 9

Scanlab RTC 4
136 pages
Print Icon
To Next Page IconTo Next Page
To Next Page IconTo Next Page
To Previous Page IconTo Previous Page
To Previous Page IconTo Previous Page
Loading...
RTC
®
4 PC Interface Board
Rev. 1.3 e
2 Product Overview
9
innovators for industry
Optionally, the RTC
®
4 PC interface board can be
delivered with an optical data interface.
2
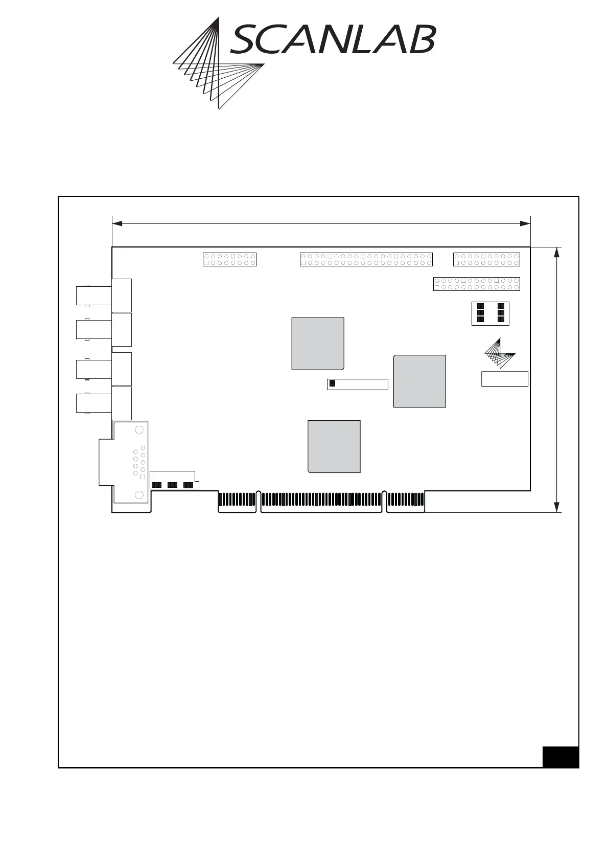
Legend
U213/U211 . . . . . . . . . . . . Primary scan head connector (ST connectors)
U212/U214 . . . . . . . . . . . . Secondary scan head connector (ST connectors, optional)
VB3 . . . . . . . . . . . . . . . . . . Laser connector and analog output ports (D-SUB 9-pin female)
MARKING ON THE FLY . . . . Connector for Processing-on-the-fly applications (optional) –
please refer to the supplement manual "Processing-On-The-Fly Software"
EXTENSION 1. . . . . . . . . . . Connector with a 16-bit digital input and a 16-bit digital output
(optional: connector for the RTC
®
4 I/O Extension Board)
EXTENSION 2. . . . . . . . . . . Connectors for the RTC
®
4 I/O Extension Board (optional) –
please refer to the supplement manual "I/O Extension Board"
LASER EXTENSION . . . . . . . Additional laser connector with 8-bit digital output port
X6/X7/X3 . . . . . . . . . . . . . Jumper bank for laser connector VB3
X10 . . . . . . . . . . . . . . . . . . Jumper for setting the laser signal level
X8/X9 . . . . . . . . . . . . . . . . Jumper bank for the LASER EXTENSION connector
SN . . . . . . . . . . . . . . . . . . . Serial number
All connectors are described in section 6 on page 52.
The jumper settings are described in detail in section 8.1 on page 58.
VB3
U212
U214
U213
U211
X6 X7 X3
X10
X8 X9
MARKING ON THE FLY EXTENSION 1 EXTENSION 2
LASER EXTENSION
SN
102 mm
160 mm
PCI CONNECTOR
Layout of the RTC
®
4 with optical data interface

Table of Contents

Related product manuals