EasyManua.ls Logo

Siemens 3TK28 - Page 199

Siemens 3TK28
206 pages
Print Icon
To Next Page IconTo Next Page
To Next Page IconTo Next Page
To Previous Page IconTo Previous Page
To Previous Page IconTo Previous Page
Loading...
Dimension drawings
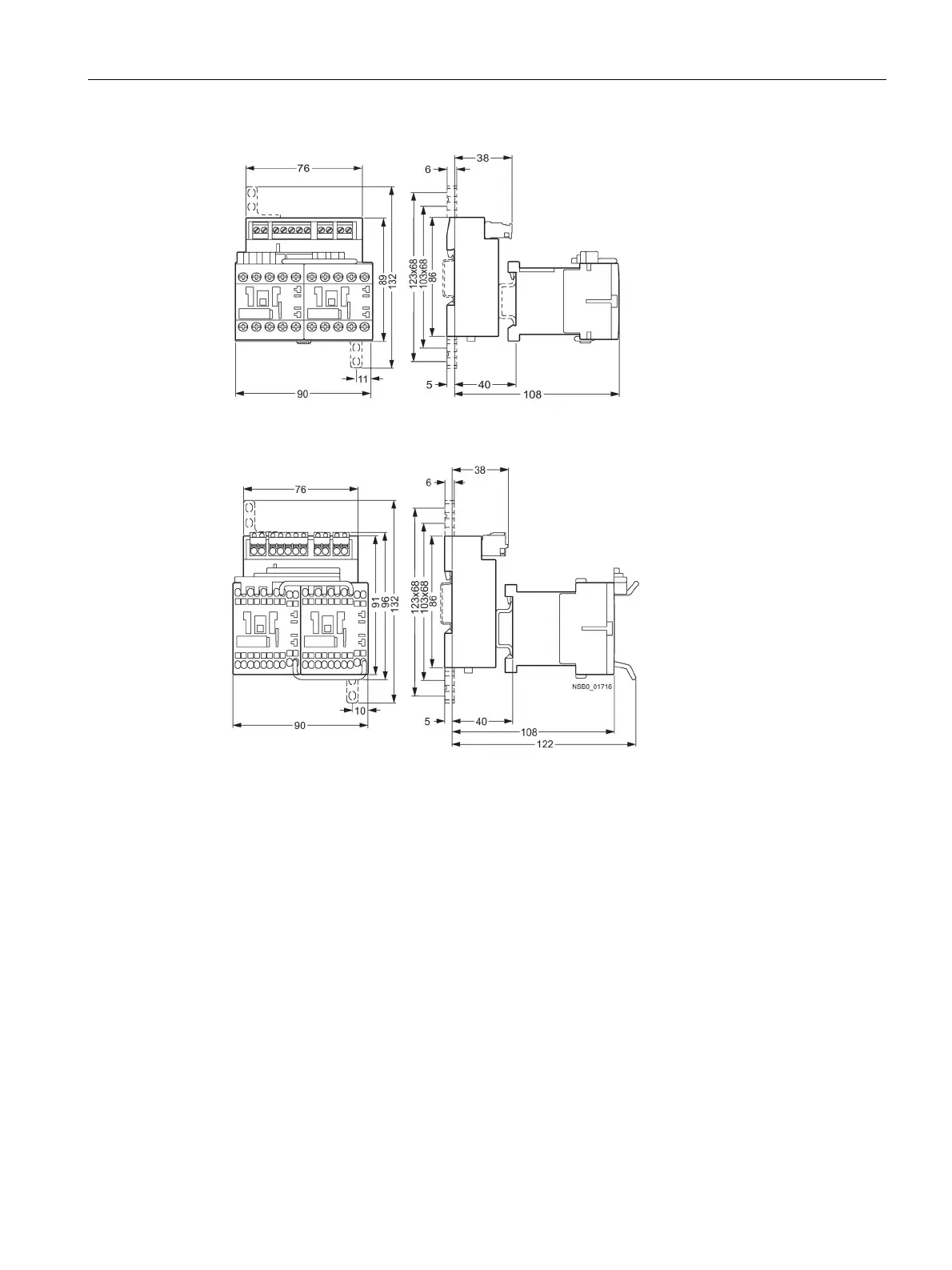
6.1 Dimension drawings 3TK28
3TK28 safety relays
Manual, 07/2016, NEB926157502000/RS-AB/003
199
Figure 6-8 3TK2850/51 screw-type
Figure 6-9 3TK2850/51 spring-loaded

Table of Contents

Related product manuals