EasyManua.ls Logo

Siemens 3TK28 - Structure 3 TK2822;23; Terminal Assignment

Siemens 3TK28
206 pages
Print Icon
To Next Page IconTo Next Page
To Next Page IconTo Next Page
To Previous Page IconTo Previous Page
To Previous Page IconTo Previous Page
Loading...
Description of the individual safety relays
3.6 3TK28 safety relays with relay enabling circuits
3TK28 safety relays
48 Manual, 07/2016, NEB926157502000/RS-AB/003
3.6.3.4
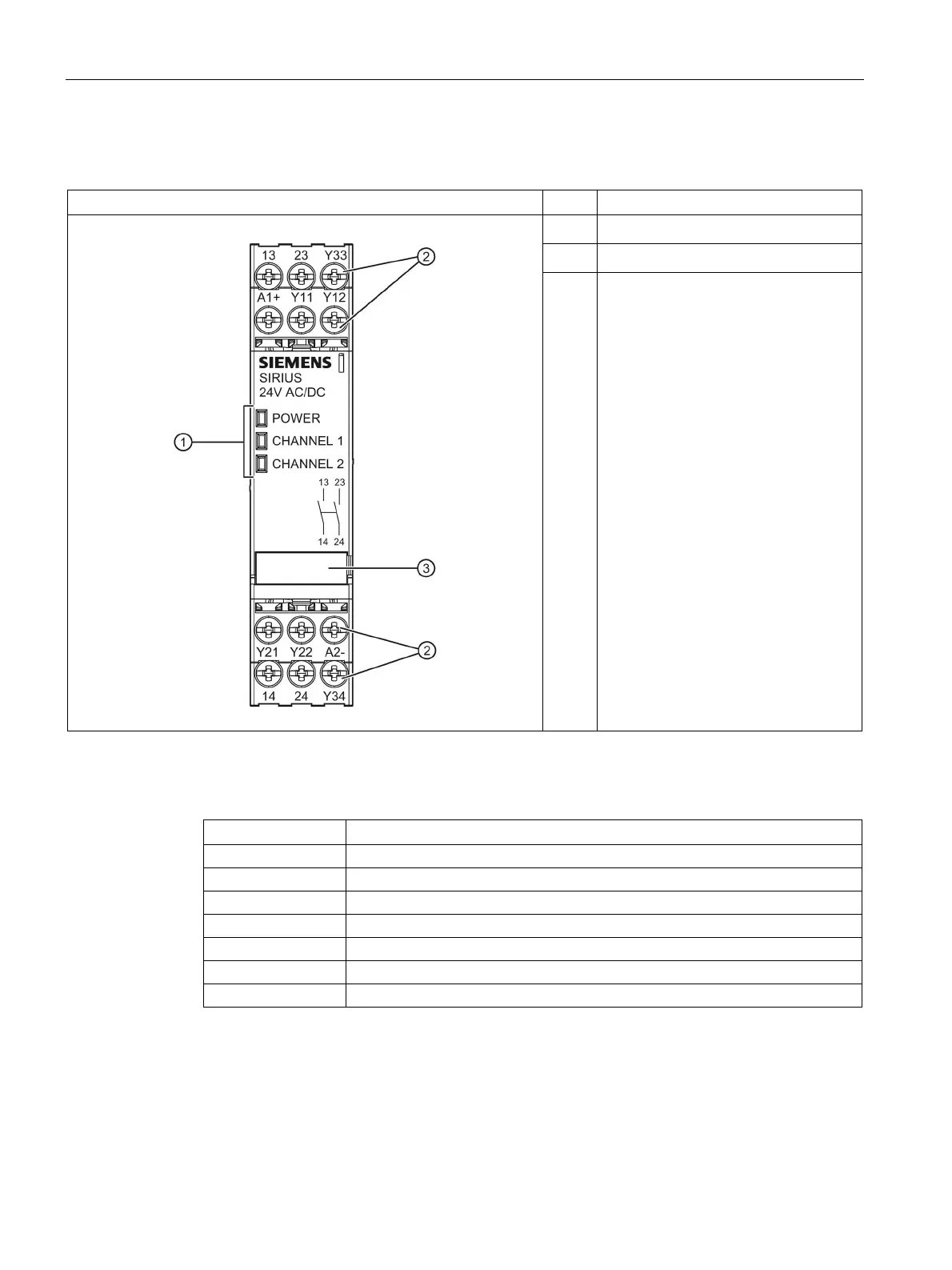
Structure 3TK2822/23
Front view
No.
Meaning
Display LEDs
Removable terminal blocks
Labels
3.6.3.5
Terminal assignment
Terminal
Description
A1
L/+
A2
N/-
Y11; Y12
Channel 1, EMERGENCY STOP or limit switch
Y21; Y22
Channel 2, EMERGENCY STOP or limit switch
Y33; Y34
On button, feedback circuit
13 - 14
Enabling circuit 1, (NO)
23 - 24
Enabling circuit 2, (NO)

Table of Contents

Related product manuals