EasyManua.ls Logo

Siemens 3TK28 - Page 32

Siemens 3TK28
206 pages
Print Icon
To Next Page IconTo Next Page
To Next Page IconTo Next Page
To Previous Page IconTo Previous Page
To Previous Page IconTo Previous Page
Loading...
Description of the individual safety relays
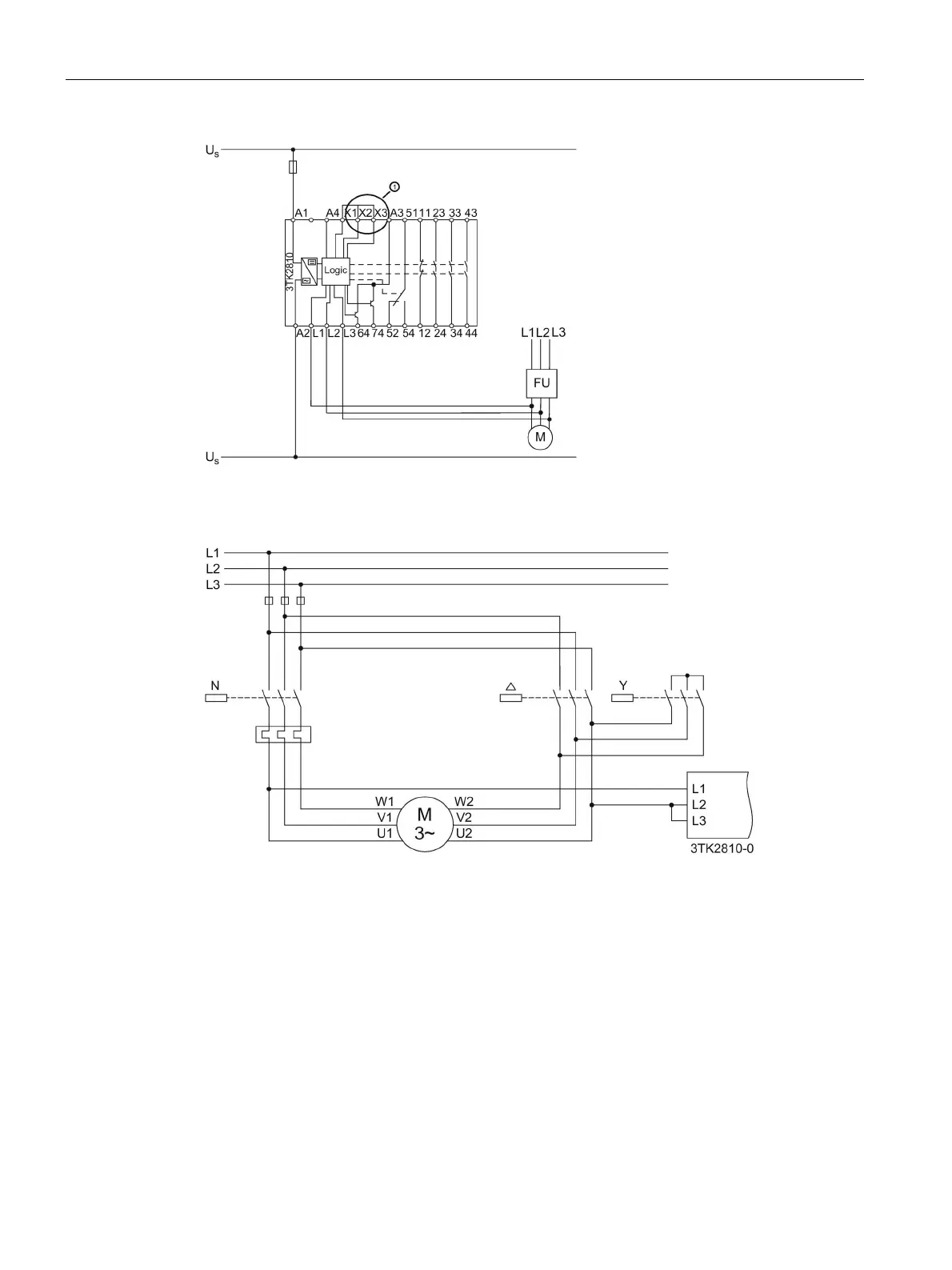
3.6 3TK28 safety relays with relay enabling circuits
3TK28 safety relays
32 Manual, 07/2016, NEB926157502000/RS-AB/003
With jumper between X2-X3 for automatic acknowledgment of open-circuit detection
Figure 3-5 Use of the 3TK2810-0 standstill monitor in a wye-delta connection

Table of Contents

Related product manuals