EasyManua.ls Logo

Siemens 6RA8085-6DS22

Siemens 6RA8085-6DS22
758 pages
To Next Page IconTo Next Page
To Next Page IconTo Next Page
To Previous Page IconTo Previous Page
To Previous Page IconTo Previous Page
Loading...
Connecting
6.5 Field supply
SINAMICS DCM DC Converter
144 Operating Instructions, 12/2018, A5E34763375A
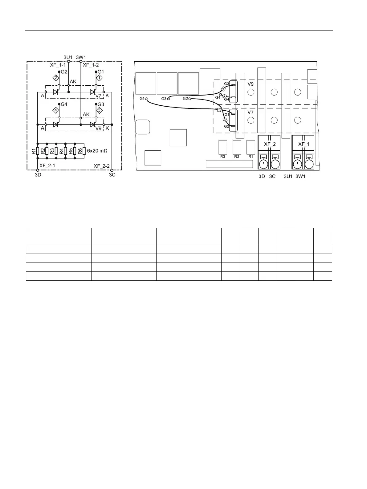
Figure 6-42 60 - 850 A devices, 2Q field module (option)
Gate cables: Betatherm 145 0.5 mm
2
, UL
Table 6- 3 R1 to R6 equipment
Rated armature
DC current
Rated field
DC current
Module
R1
R2
R3
R4
R5
R6
60 A ... 125 A
10 A
10 A field module
x
x
-
-
-
-
210 A ... 280 A
15 A
15 to 30 A field module
x
x
x
x
x
x
400 A ... 600 A
25 A
15 to 30 A field module
x
x
x
x
x
x
720 A ... 850 A 30 A 15 to 30 A field module x x x x x x

Table of Contents

Related product manuals