EasyManua.ls Logo

Siemens 6RA8085-6DS22

Siemens 6RA8085-6DS22
758 pages
To Next Page IconTo Next Page
To Next Page IconTo Next Page
To Previous Page IconTo Previous Page
To Previous Page IconTo Previous Page
Loading...
Additional system components
7.4 Terminal Module TM15
SINAMICS DCM DC Converter
Operating Instructions, 12/2018, A5E34763375A
231
7.4.6
Dimension drawing
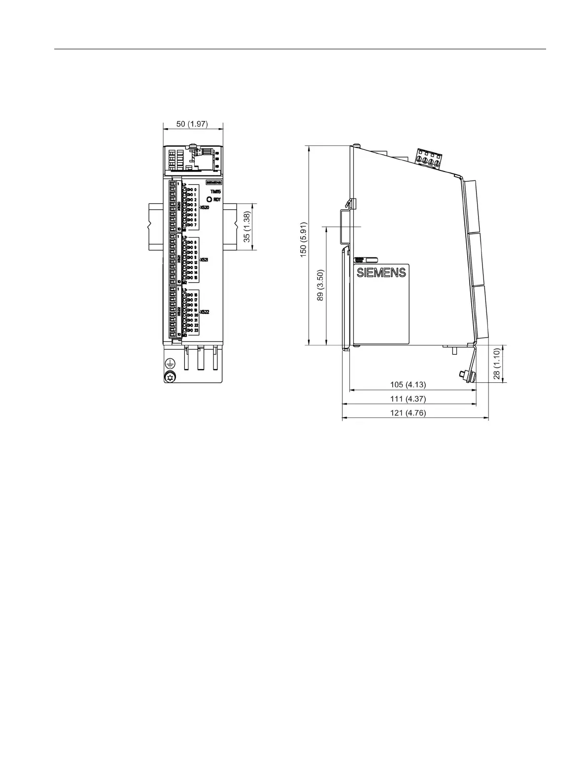
Figure 7-20 Dimension drawing of Terminal Module TM15, all data in mm and (inches)
7.4.7
Installation
Installation
1. Tilt the component backwards slightly and attach it to the DIN rail using the hooks.
2. Swivel the component onto the DIN rail until you hear the mounting slide at the rear latch
into position.
3. Slide the components along the mounting rail to either the left or right up to their final
position.

Table of Contents

Related product manuals