EasyManua.ls Logo

Siemens 6RA8085-6DS22

Siemens 6RA8085-6DS22
758 pages
To Next Page IconTo Next Page
To Next Page IconTo Next Page
To Previous Page IconTo Previous Page
To Previous Page IconTo Previous Page
Loading...
Connecting
6.5 Field supply
SINAMICS DCM DC Converter
Operating Instructions, 12/2018, A5E34763375A
143
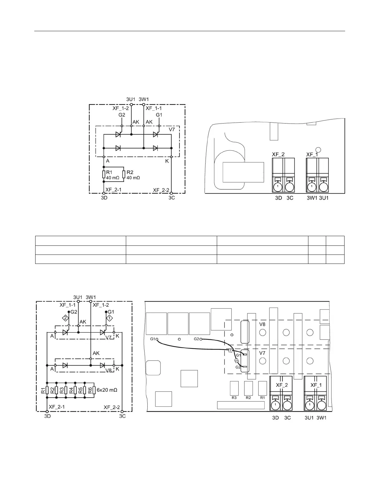
6.5
Field supply
15 to 30 A devices
Figure 6-40 15 - 30 A devices, 1Q field
Table 6- 2 R1, R2 equipment
Rated armature DC current
Rated field DC current
Module
R1
R2
15 A
3 A
15 A power unit
x
-
30 A
5 A
30 A power unit
x
x
60 to 850 A devices
Figure 6-41 60 - 850 A devices, 1Q field module

Table of Contents

Related product manuals