EasyManua.ls Logo

Siemens 6RA8085-6DS22

Siemens 6RA8085-6DS22
758 pages
To Next Page IconTo Next Page
To Next Page IconTo Next Page
To Previous Page IconTo Previous Page
To Previous Page IconTo Previous Page
Loading...
Connecting
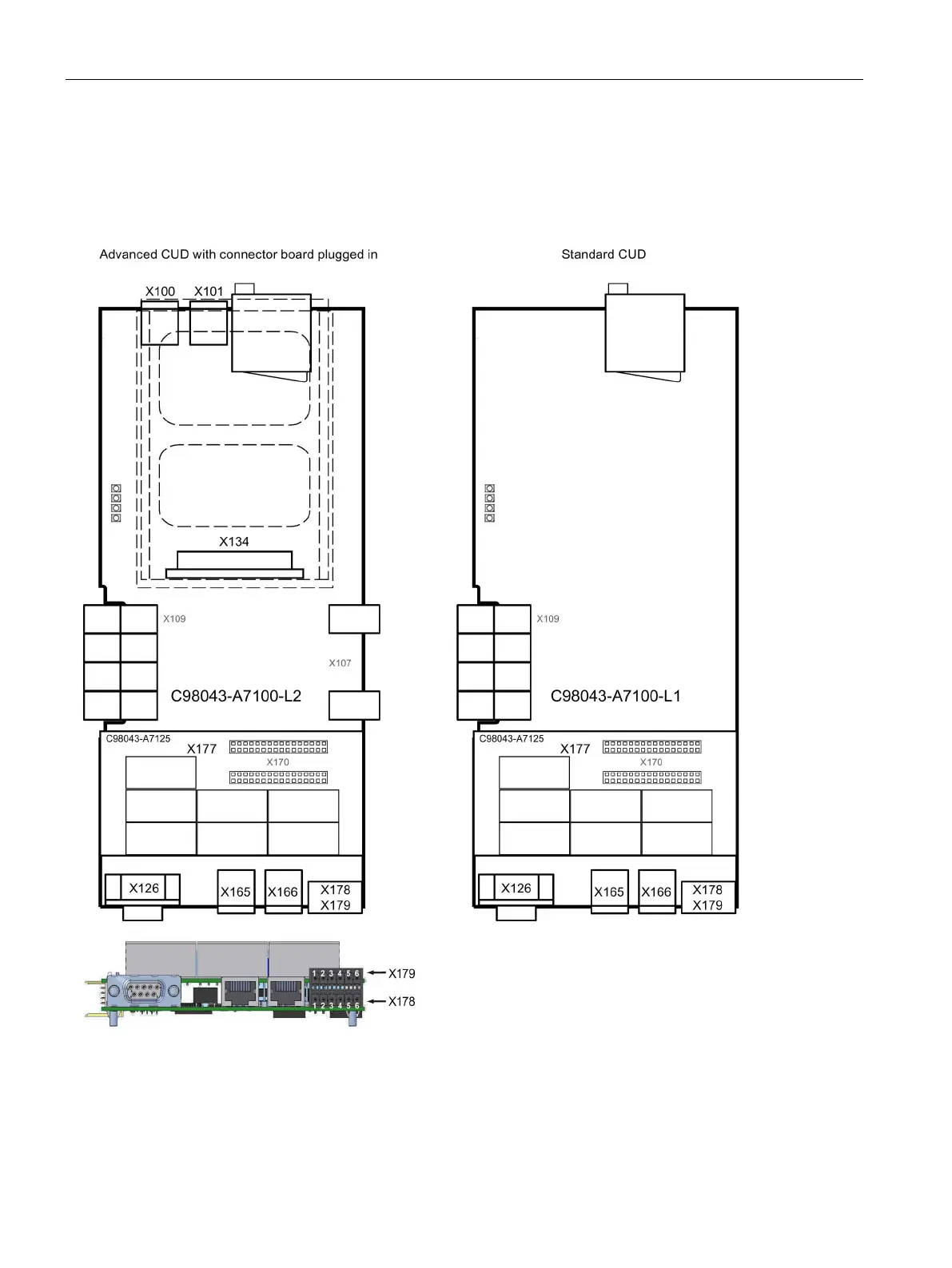
6.8 Arrangement of terminals and connectors
SINAMICS DCM DC Converter
156 Operating Instructions, 12/2018, A5E34763375A
6.8
Arrangement of terminals and connectors
Module Control Unit (CUD)
Figure 6-44 Terminal/connector arrangement on the "Control Unit (CUD)"

Table of Contents

Related product manuals