EasyManua.ls Logo

Siemens 6RA8085-6DS22

Siemens 6RA8085-6DS22
758 pages
To Next Page IconTo Next Page
To Next Page IconTo Next Page
To Previous Page IconTo Previous Page
To Previous Page IconTo Previous Page
Loading...
Descriptions of functions
10.3 Communication according to PROFIdrive
SINAMICS DCM DC Converter
428 Operating Instructions, 12/2018, A5E34763375A
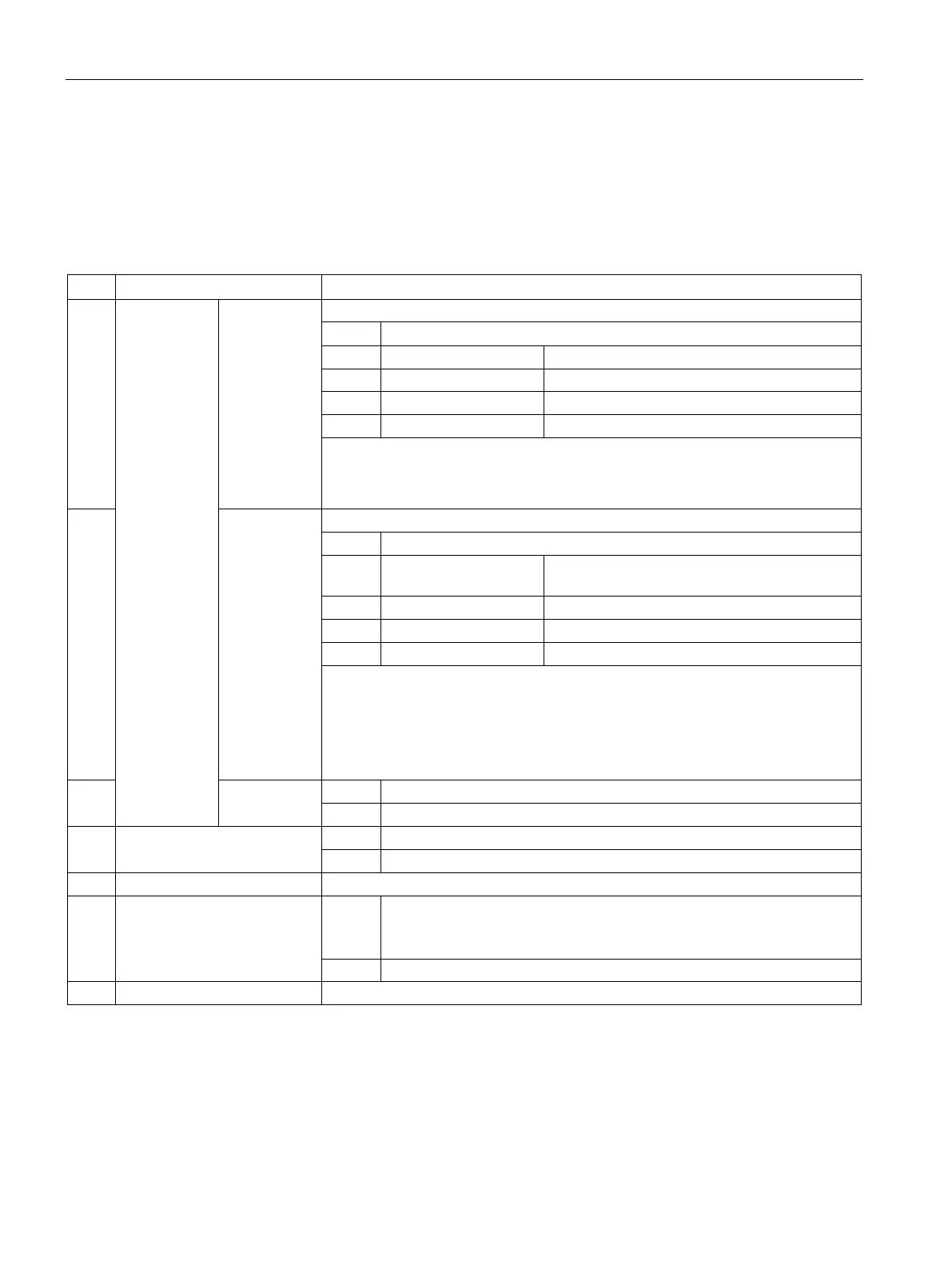
Encoder n status word (Gn_ZSW, n = 1, 2)
The encoder status word is used to display states, errors and acknowledgements.
See function diagram [4730]
Table 10- 18 Description of the individual signals in Gn_ZSW
Bit
Name
Signal status, description
0
1
2
3
Reference
mark search
Status:
Function 1 - 4
active
Valid for "Reference mark search" and "Flying measurement"
Bit Meaning
0
Function 1
Reference mark 1
1
Function 2
Reference mark 2
2
Function 3
Reference mark 3
3
Function 4
Reference mark 4
Note:
Bit x = 1 function active
Bit x = 0 function inactive
4
5
6
7
Status:
Value 1 - 4
available
Applies to reference mark search
Bit
Meaning
4 Value 1 Reference mark 1
Probe 1 rising edge
5
Value 2
Reserved
6
Value 3
Reserved
7
Value 4
Reserved
Note:
Bit x = 1 value available
Bit x = 0 value not available
Only one single value can be retrieved.
Reason: There is only one common status word Gn_XIST2 to read the values.
8 Reserved
1
Reserved
0
Reserved
9 Reserved
1
Reserved
0
Reserved
10
Reserved
-
11 Encoder fault acknowledge
active
1 Encoder fault acknowledge active
Note:
See at STW.15 (acknowledge encoder error)
0
No acknowledgement active
12
Reserved
-

Table of Contents

Related product manuals