EasyManua.ls Logo

Siemens S5-135U/155U - Page 241

Siemens S5-135U/155U
560 pages
To Next Page IconTo Next Page
To Next Page IconTo Next Page
To Previous Page IconTo Previous Page
To Previous Page IconTo Previous Page
Loading...
5-101
System Manual
C79000-G8576-C199-06
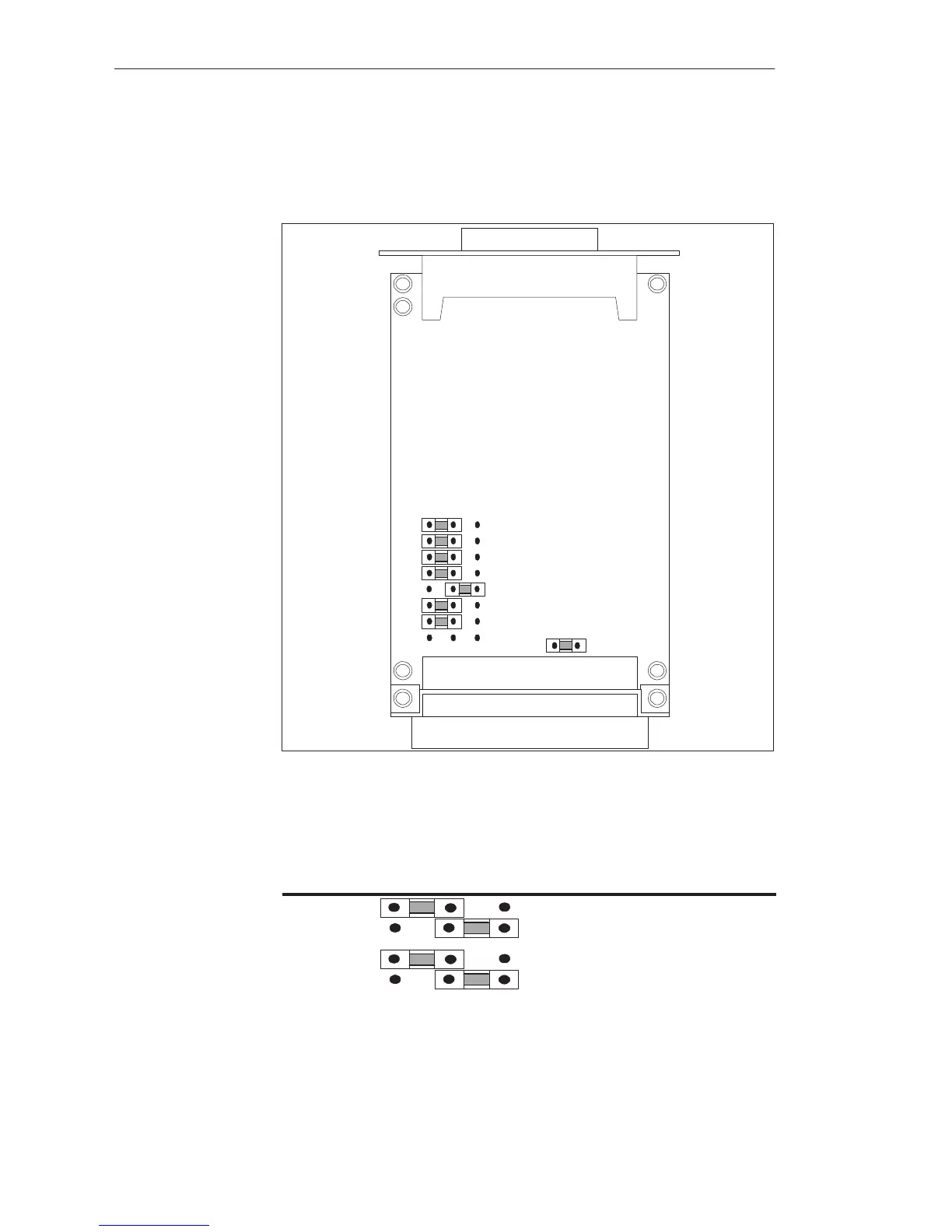
When the V.24 submodule is delivered, the jumpers are set as shown in the
following figure. As a rule, you can therefore use the V.24 submodule
immediately.
Backplane Connector
Front Connector
25-Pin Sub. D-Type
J2
J1
J3
J4
Br5
Br6
Br8
Br9
Br7
Figure 5-15 V.24 Submodule: Jumper Settings when Delivered
You can change over the polarity of the transmit and receive data with
jumpers J3 and J5.
123
J3 Transmit data in normal polarity
Transmit data negated
J5 Receive data in normal polarity
Received data negated
Jumper Settings of
the V.24
Submodule
CPUs, Memor
y
Cards, Memor
y
Submodules, Interface Submodules

Table of Contents

Related product manuals