EasyManua.ls Logo

Siemens S5-135U/155U - Page 286

Siemens S5-135U/155U
560 pages
To Next Page IconTo Next Page
To Next Page IconTo Next Page
To Previous Page IconTo Previous Page
To Previous Page IconTo Previous Page
Loading...
6-24
System Manual
C79000-G8576-C199-06
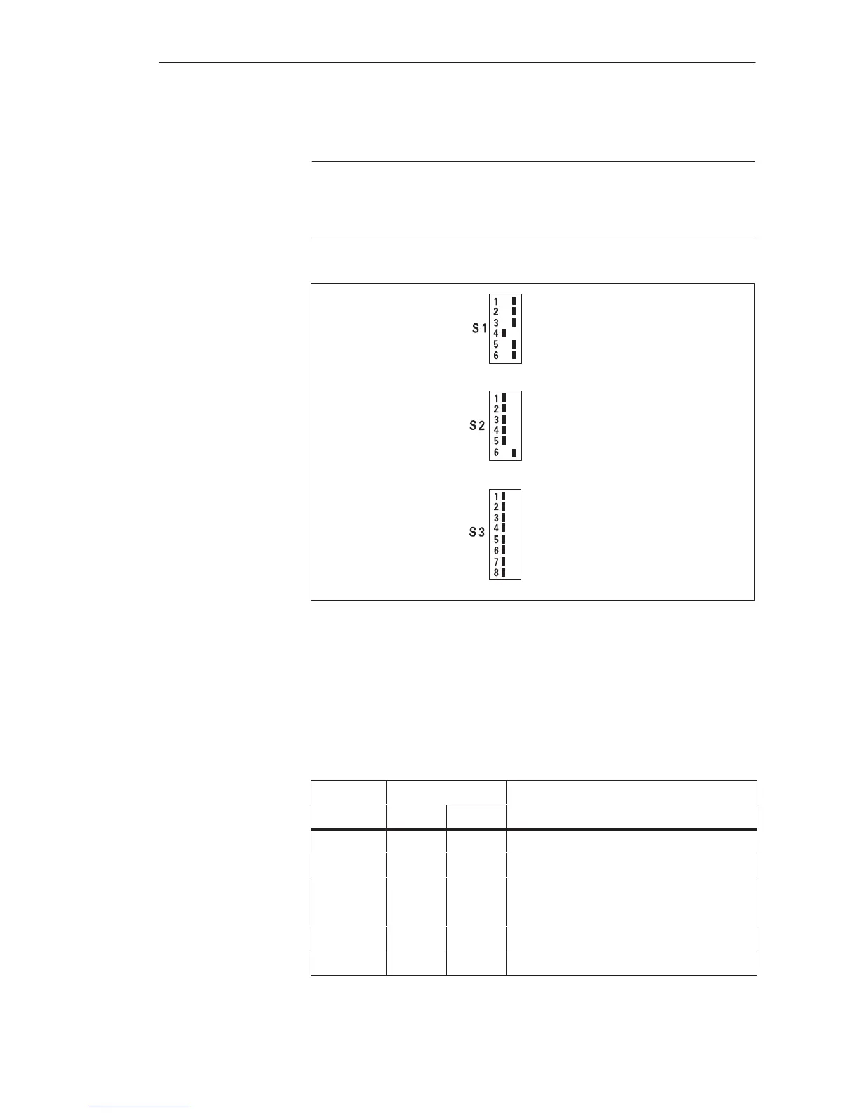
Note
On switch S1, the On position is on the left; on switches S2 and S3, however,
it is on the right (see Figure 6-10).
on
off
on
on
off
off
Figure 6-10 DIL Switches on the COR 923C (Settings when Delivered)
You set the number of CPUs present in the PLC with the 3 DIL switches S1.4
to S1.6. You may only set one switch.
The factory setting is “Number of CPUs = 2” (see below).
Factory setting:
Switch
Setting
Meaning
on off
S1.1 x
S1.2 x
S1.3 x Test mode (see also Sec. 6.3)
S1.4 x Number of CPUs = 2
S1.5 x Number of CPUs = 3
S1.6 x Number of CPUs = 4
Setting the DIL
Switches
Coordination
Section (Number
of CPUs)
Multiprocessor Operation/Coordinators

Table of Contents

Related product manuals