EasyManua.ls Logo

Siemens S5-135U/155U - Page 61

Siemens S5-135U/155U
560 pages
To Next Page IconTo Next Page
To Next Page IconTo Next Page
To Previous Page IconTo Previous Page
To Previous Page IconTo Previous Page
Loading...
3-35
System Manual
C79000-G8576-C199-06
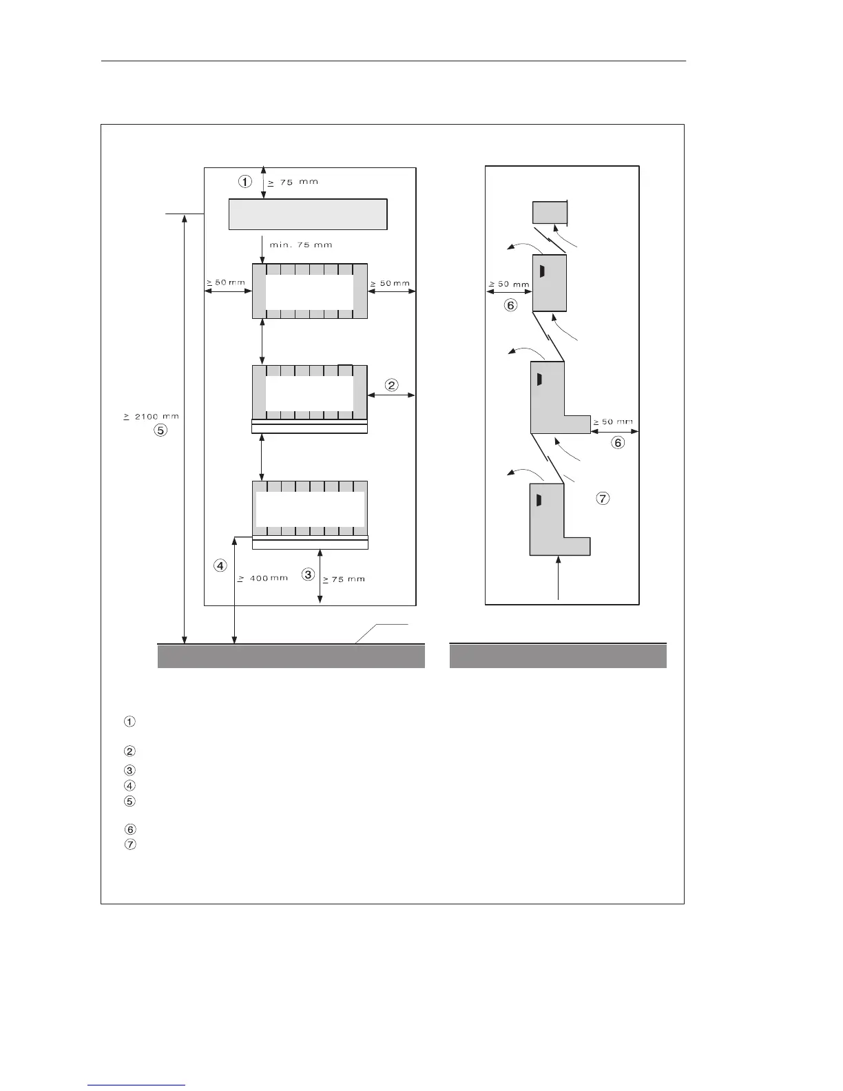
Maximum installation height for control elements: 2100 mm to DIN VDE 0106, Part 100,
2000 mm to DIN VDE 0113.
Space for air circulation (400 mm deep cabinets are sufficient).
75 mm min., smaller clearances are possible with a closed cabinet roof and an additional, separate ventilation
roof.
75 mm min. from obstructions (large apparatus) in the air inlet area.
A maximum clearance of 400 mm is possible (50 mm min.) when devices are connected next to one another.
400 mm minimum installation height above access level for control elements, 200 mm for connections.
Baffles are recommended to improve the air supply.
&#

&#

&#
+
!!(#&""*
 %#
)&$%
#
)&$%
#
)&$%
#
 %#
 %#

 %#
$$'
!## $
!## $
Figure 3-15 Clearances in the Cabinet
Installation Guidelines

Table of Contents

Related product manuals