EasyManua.ls Logo

Siemens SIMATIC FM 351 - Wiring Diagram for an Open-Loop Positioning System; Installation in a Cabinet

Siemens SIMATIC FM 351
170 pages
To Next Page IconTo Next Page
To Next Page IconTo Next Page
To Previous Page IconTo Previous Page
To Previous Page IconTo Previous Page
Loading...
4
4-2
FM 351 Positioning Function Module
EWA 4NEB 720 6001-02
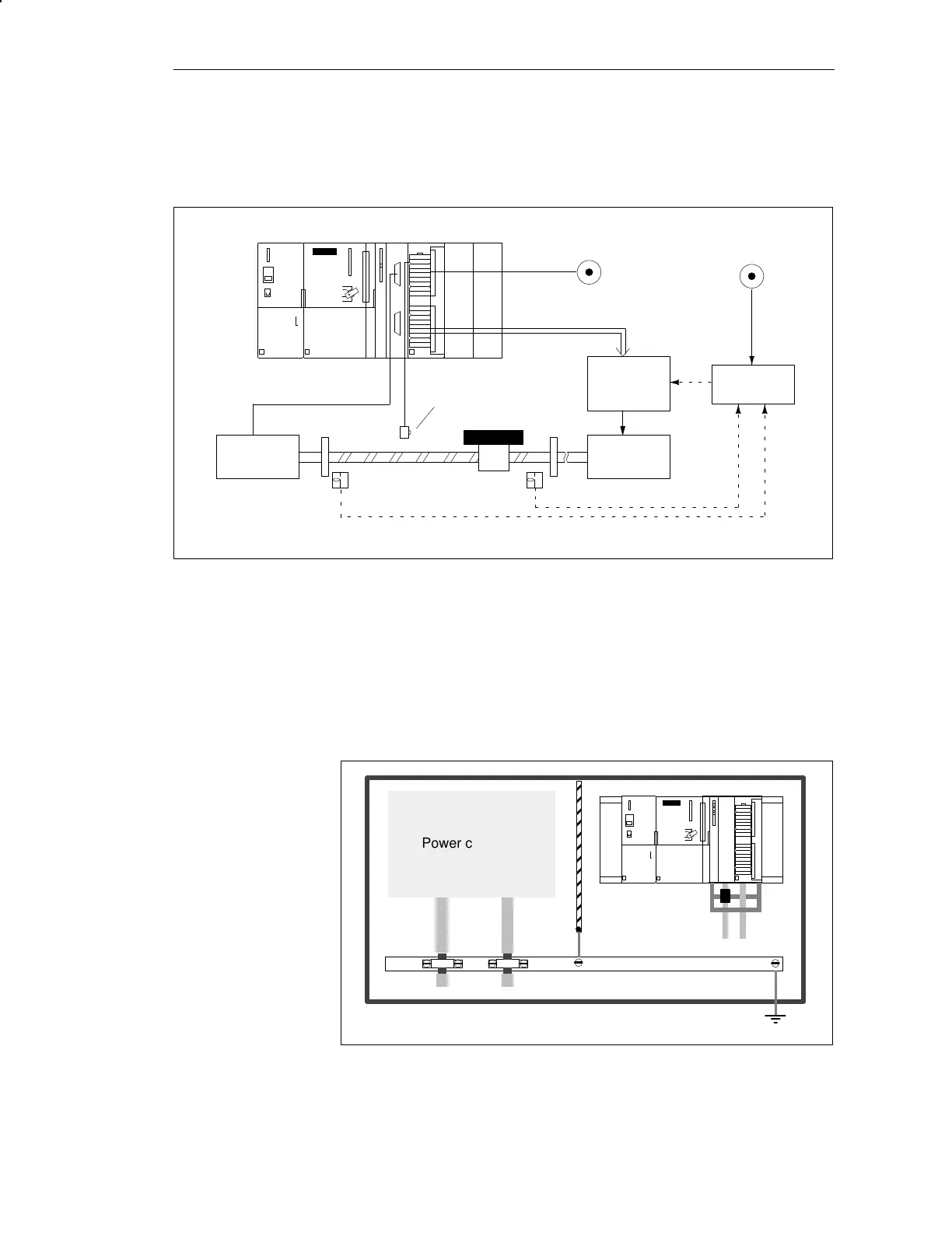
In Figure 4-1 you can see a wiring diagram for an open-loop positioning sys-
tem using the FM 351 Positioning Function Module.
Power
controller
Motor
Slide
Encoder
Reference-
point switch
Enable
PS CPU
FM 351
Safety
device
EMERGENCY STOP
Figure 4-1 Wiring Diagram for an Open-Loop Positioning System
A diagram of a cabinet installation is shown in Figure 4-2. The FM 351 Posi-
tioning Function Module, the CPU and power supply module are situated in
the right part of the cabinet. The power controller is accommodated in the
left part of the cabinet. The right and left parts of the cabinet are separated
spatially by a grounded partition.
É
É
É
É
É
É
É
Power controller
Partition
16 mm
2
Shield bus
PS
CPU FM 351
Cabinet
Figure 4-2 Installation in a Cabinet
Wiring Diagram
Installation in a
Cabinet
Wiring the FM 351

Table of Contents

Other manuals for Siemens SIMATIC FM 351

Related product manuals