EasyManua.ls Logo

Sony MJ620 - 外形寸法図

Sony MJ620
Print Icon
To Next Page IconTo Next Page
To Next Page IconTo Next Page
To Previous Page IconTo Previous Page
To Previous Page IconTo Previous Page
Loading...
(J) 23
MJ620
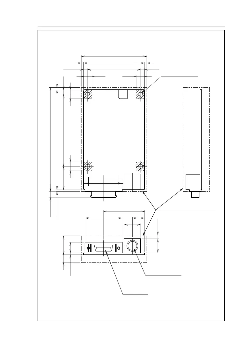
6. 外形寸法図
59
2(1.5) 90
93.5(5.4)
(4)2117
9.61.6
12.8 (3.5)
7
88
65
2
3.5
2
(3.5)
7.57.5
55
48
37
33.4
11
15
4 Ø3.5
取付穴
基板およびマウント部品占有領域
センサ入力コネクタ
ホシデン:TCS7587-01-401
出力コネクタ
ホンダ゙:PCR-E20LMD
MJ620
単位:mm

Table of Contents