EasyManua.ls Logo

Sony MJ620 - 6 Abmessungen

Sony MJ620
Print Icon
To Next Page IconTo Next Page
To Next Page IconTo Next Page
To Previous Page IconTo Previous Page
To Previous Page IconTo Previous Page
Loading...
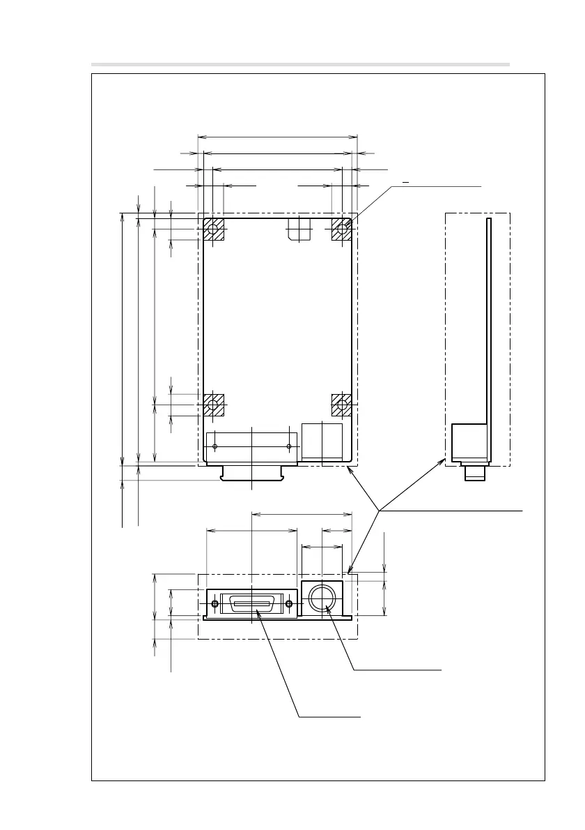
(G) 23
MJ620
59
2(1,5) 90
93,5(5,4)
(4)2117
9,61,6
12,8 (3,5)
7
88
65
2
3,5
4 –Ø3,5
2
(3,5)
7,57,5
55
48
37
33,4
11
15
Montagebohrung
Von Platine und montierten
Teilen belegter Bereich
Sensor-Eingangsbuchse
Hoshiden: TCS7587-01-401
Ausgangsbuchse
Honda: PCR-E20LMD
6. Abmessungen
MJ620
Einheit: mm

Table of Contents