EasyManua.ls Logo

Stepp SPHD series - Page 102

Default Icon
192 pages
Print Icon
To Next Page IconTo Next Page
To Next Page IconTo Next Page
To Previous Page IconTo Previous Page
To Previous Page IconTo Previous Page
Loading...
102
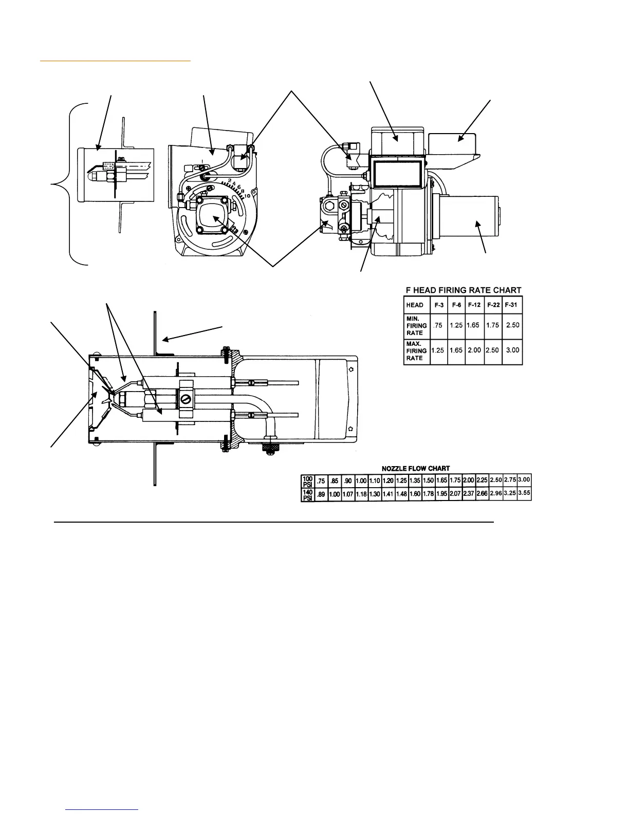
REPLACEMENT PARTS Diesel Burner
ITEM QTY DESCRIPTION PART#
1 1 Burner, fuel oil, Beckett Mod ADC W/CON 5-02 A10008215
2 1 Air Tube 509070
3 1 Photo electric eye (under ignition transformer) A10007678
4 1 Valve, fuel control 509091
5 1 Ignition Transformer 509087
6 1 Primary Controller A10008216
7 1 Motor, fan and pump 509092
8 1 Coupling, pump to motor 509086
9 1 Pump, burner fuel 509094
10 1 Fuel retention head, F-12 P10005132
11 1 Nozzle, 1.5 P10005125
12 1 Electrode kit, igniter 509089
13 1 Mounting Flange 509071
** 1 Fuel Filter- Burner P10000164
Note: Nozzle GPH rated at 100 psi.
1
2 3
4 5
6
7
8
9
10
11
12
13

Table of Contents

Related product manuals