EasyManua.ls Logo

Suntherm SEHX - Wire Diagram Electric Heat - C.T. Motor W; FS - no Pump

Default Icon
38 pages
Print Icon
To Next Page IconTo Next Page
To Next Page IconTo Next Page
To Previous Page IconTo Previous Page
To Previous Page IconTo Previous Page
Loading...
MORTEXPRODUCTSINC.501TERMINALRDFORTWORTH,TEXAS76106 Page37
YEL
GRN - GND
BLK - L1
BLU - 24V COM
ORN
WHTWHT
WHT
WHT
BMMP
BMMP - BLOWER MOTOR MALE PLUG
LEGEND
This diagram for HE / C/SHEX models with Nidec Double Shaft Motor.
WHT
ST - BLOWER MOTOR SPEED TAP
WHT
PUR - PURPLE
RED - L2
BMMP PIN OUT
1 - BLK - L1
2 - BLANK
3 - GRN - GND
4 - BLANK
5 - BLANK
6- WHT
7 - YEL
9 - RED - L2
8 - BLU - 24V COM
10 - ORN - ST5
11 - BLANK
12 - BLANK
101112
1
23
4
5
6
7
89
1011
12
RED
GRN
ORN
BLK
WHT
BMFP
BMFP PIN OUT
1 - BLK - L1
2 - BLANK
3 - GRN - GND
4 - BLANK
5 - BLANK
6- WHT
7 - BLANK
9 - RED - L2
8 - BLU - 24V COM
10 - ORN - ST5
11 - BLANK
12 - BLANK
YEL
1/3 HP - Heating Speed Tap 3
1/2 HP - Heating Speed Tap 1
YEL
YEL
BLU
RED
WHT
COM
BLU
White wire on terminal 6 on the
male plug must be on Speed
Tap 1 or Speed Tap 3
C/SEHX 18 - 36 03 kW to 10 kW
24 VAC
R
G
W
C
RED
GRN
L1
L2
RED
240 VAC
GND
G
BLKBLK
WHT
RED
RED
61CC0630D
LADDER DIAGRAM
SCHEMATIC DIAGRAM
GRN
Wire Colors
BLK - BLACK
BLU - BLUE
BRN - BROWN
ORN - ORANGE
YEL - YELLOW
WHT - WHITE
GRN - GREEN
LEGEND
TDR - OPTIONAL COOLING BLOWER TIME DELAY RELAY
TR
GND - GROUND CONNECTION
HC - ELECTRIC HEATER CONTACTOR
HEAT - BLOWER MOTOR SPEED RELAY
GRN
BLU
GRN
TDR
FAN COIL
FAN
TDR
BLU
BLUYEL
GL
HC COIL
WHT
YEL
HEU1 / HEU3 / HEC1 / HEC3 18 - 36 - 03 kW to 10 kW
A2
A1
1
3
2
4
56
FAN
BLK - L1
RED - L2
BM
13
1
2
3
4
56
L2
L1
3 Amp
Fuse
Fuse
3 Amp
GND
GRN
RED
BLU
RED
1
2
RED
BLK
BLK
RED
BLU
BLU
YEL
GRN
240
BLK
WHT
GND
WHT
RED
LS LS
1.5, 2, 2.5, 3, 4, 5 kW Heater
1.5, 2, 2.5, 3, 4, 5 kW Heater
LS - LIMIT SWITCH
L1 T1
HC
HTR 1
REDBLUBLK RED
LS 1
L1
T1
HC HTR 2
REDBLU
BLK RED
TR - TRANSFORMER
GL - GROUND LUG
TR
BMFP - BLOWER MOTOR FEMALE PLUG
GRN
THERMOSTAT
PIGTAILS
GGS - GREEN GROUND SCREW
GGS
GGS
ORN
208
L1
GND
GGS
GND
GGS
GRN
24V
Com
1
3
LOAD
1.5 AMP
MAX
CUT WIRE FOR 120/240 VAC
.4
15
30 S EC ONDS
MADE IN
THE USA
ICM
HMPS00C2X30
DELAY ON
MAKE
TIMER
CONTROLS
INPUT
19-240
VAC
1
2
SHL
RED
WHT
RED
RED
RED
WHT
SHL
SHL - OPTIONAL SUPPLEMENTAL HEAT LOCKOUT SWITCH
GRN
GRN
BLK
BLU
BLU
GRN
GRN
RED - L2 RED RED
BLU
RED
BLU
RED
RED
RED
RED
WHT
WHT
WHT
WHT
RED
RED
RED
RED
YEL
YEL
YEL
YEL
L1 L2
T1
T2
A1
A2
HC
WHT
WHT
WHT
WHT
T2 L2
HC
T2
L2
HC
RED
WHT
LS 2
12 1
2
CLASS 2
CLASS 2
- FIELD INSTALLED WIRING
BLK
BLKBLK - L1
BLK
BLK
BLU
BLU
BLU
BLK
BLK
WHT
RED
RED
ORN
WHT
ORN - ST5
BLU - COM
BLU
RED
WHT
WHT
NOTE: FIELD INSTALLED SHL is REQUIRED on all HEAT PUMP application installations
WHT
WHT
WHT
WHT
WHT
1
2
3
4
5
C
L
G
N
BLOWER
FP
PIN NUMBERS
3
2
1
654
987
CT
MOTOR
ORN
GRN
RED
BLK
WHT
BLU
MT
BMFP
BLU - 24V Com
WHT - ST1
ORN ST5
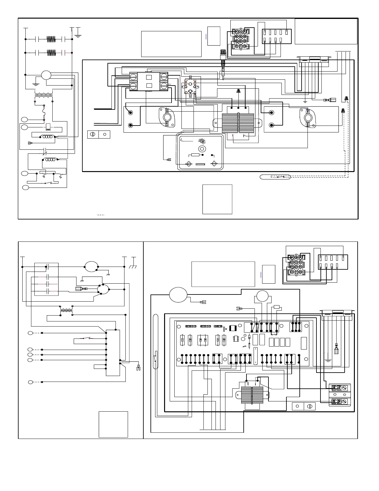
Figure 38 SEHX, CEHX, SCWE, CCWE 18 – 37 – 03kW to 10kW Electric Heat – Constant Torque Blower Motor w/
Field Installed Electric Heat Lockout Switch
MED
HI
XFMR
L1
PUMP
LOW
E
RRR
Y
CL-INCC CL
OUT
F1
AQGW
FRRH/
W2
BY
DHM
30
15
0
30
15
0
FAN
ON
FAN
OFF
AQ
ON
OFF
24V
COM
VALVE
N/L2
BOILER
FAN CIR
Rin
61CC0576C
RED - RED
BLU - BLUE
GRN - GREEN
BLK - BLACK
WHT - WHITE
YEL - YELLOW
WIRE COLORS
WHT
R
W
G
C
RED
YEL
BLK
WHT
120 VAC
24 VAC
BRN
GRN
LADDER DIAGRAM
WHT
BM
ORN
RED
SCHEMATIC DIAGRAM
RED
GND
Control Box
RED - R
GRN - G
T'STAT
PIGTAILS
GRN
HYDRONIC HEAT FURDOWN - W/ PUMP and FS
TR
LEGEND
HCB - HYDRONIC CONTROL BOARD
TR - TRANSFORMER
HEU2, HEU4, HEC2, HEC4 18-36
TR
BM - BLOWER MOTOR
ST - BLOWER MOTOR SPEED TAP
GND
GND
GRN
GGS
SunTherm
HEATING PRODUCTS
FORT WORTH, TEXAS 76106
GRN
24 VAC
YEL
BRN - C
ICB
R
R
FR
W
G
Rin
BRN
RED
WHT
GRN
L1
N
G
G - GROUND
L1 - 120 VAC SUPPLY LINE
N - 120 VAC NEUTRAL LINE
GND - GROUND
CLASS 2
CLASS 2
GL
WHT
TB
L1
N
YEL
WHT
BLK
RED
RED
120 VAC
PUMP
HI
MED
LOW
BLK
ORN
BLK
L1
Internal connection on control board
BLU
BLU
BLU
N
XFMR
GRN
GND
AY1015
YEL - Y
YY
YEL
YEL
BLU - COM
ORN - ST5
WHT - ST1
YEL
RED - N
GRN - GND
BLK - L1
GND
GGS
BMMP
BLU - 24V COM
BLU
BLK
BLK
RED
WHT
RED
WHT
WHT
YEL
YEL
YEL
GRN
YEL
RED
BMMP - BLOWER MOTOR MALE PLUG
BMFP - BLOWER MOTOR FEMALE PLUG
Zone
Valve
AQ
C
24V
C
C
FS - Freeze Sensor
WHT
Pump
Water
WHT
WHT
GND
GRN
YEL
YEL
YEL
YEL
YEL
YEL
YEL
WHT
WHT
WHT
WHT - W
WHT
CLin
CLout
WHTWHT
WHT
FS
C
C
YEL
CLO - COMPRESSOR LOCKOUT
CC - COMPRESSOR CONTACTOR
FS - FREEZE STAT
HCB
HCB
Water
Pump
YEL
YEL
WHT
WHT
GND
GRN
BLK
PUR - PUIRPLE
ORN - ORANGE
C/SDXW 18-36
1
2
3
4
5
C
L
G
N
BLOWER
FP
PIN NUMBERS
321
654
9
8
7
CT
MOTOR
ORN
GRN
RED
BLK
WHT
BLU
MT
BMFP
101112
1
2
3
4
56
78
9
10
1112
RED
GRN
ORN
BLK
WHT
BMFP
BMMP PIN OUT
1 - BLK - L1
2 - BLANK
3 - GRN - GND
4 - BLANK
5 - BLANK
6- WHT ST1
7 - YEL
9 - RED - N
8 - BLU - 24V COM
10 - ORN - ST5
11 - BLANK
12 - BLANK
YEL
BLK
YEL
BRN
BRN
BRN
BRN
YEL
YEL
BRN
Figure 39 SDXW, CDXW, SCWW, CCWW - 18 – 37 BTU/H – Hydronic Heat – Constant Torque Blower Motor w/
Freeze Switch and Water Pump

Table of Contents