EasyManua.ls Logo

Suntherm SEHX - Wire Diagram Electric Heat - C.T. Motor W; FS and Pump

Default Icon
38 pages
Print Icon
To Previous Page IconTo Previous Page
To Previous Page IconTo Previous Page
Loading...
MORTEXPRODUCTSINC.501TERMINALRDFORTWORTH,TEXAS76106 Page38
61CC0577B
RED - RED
BLU - BLUE
GRN - GREEN
BLK - BLACK
WHT - WHITE
YEL - YELLOW
WIRE COLORS
WHT
R
W
G
C
RED
YEL
BLK
WHT
120 VAC
24 VAC
BRN
GRN
LADDER DIAGRAM
WHT
BM
ORN
RED
SCHEMATIC DIAGRAM
RED
GND
Control Box
RED - R
GRN - G
T'STAT
PIGTAILS
GRN
TR
LEGEND
HCB - HYDRONIC CONTROL BOARD
TR - TRANSFORMER
HEU2, HEU4, HEC2, HEC4 18-36
TR
BM - BLOWER MOTOR
ST - BLOWER MOTOR SPEED TAP
GND
GND
GRN
GGS
SunTherm
HEATI NG PRO DUCTS
FORT WORTH, TEXAS 76106
GRN
24 VAC
BRN
BRN - C
ICB
R
R
FR
W
G
Rin
BRN
RED
WHT
GRN
L1
N
G
G - GROUND
L1 - 120 VAC SUPPLY LINE
N - 120 VAC NEUTRAL LINE
GND - GROUND
CLASS 2
CLASS 2
GL
TB
L1N
YEL
BLK
RED
RED
120 VAC
PUMP
HI
MED
LOW
BLK
ORN
BLK
L1
Internal connection on control board
BLU BLU
BLU
N
XFMR
GRN
GND
AY1015
YEL - Y
YY
YEL
YEL
BLK - L1
ORN - ST5
RED - N
GRN - GND
WHT - ST1
BLU - 24V COM
GND
GGS
BMMP
BLU - 24V COM
BLU
BLK
BLK
RED
WHT
WHT
RED
WHT
YEL
BRN
YEL
GRN
YEL
RED
BMMP - BLOWER MOTOR MALE PLUG
BMFP - BLOWER MOTOR FEMALE PLUG
YEL
Zone
Valve
AQ
C
24V
C
C
FS - Freeze Sensor
WHT
WHT
WHT
WHT - W
WHT
CLin
CLout
WHTWHT
WHT
FS
C
C
YEL
CLO - COMPRESSOR LOCKOUT
CC - COMPRESSOR CONTACTOR
FS - FREEZE STAT
HCB
HCB
PUR - PURPLE
ORN - ORANGE
HYDRONIC HEAT FURDOWN - W/ FS - NO PUMP
1
2
3
4
5
C
L
G
N
BLOWER
FP
PIN NUMBERS
321
654
987
CT
MOTOR
ORN
GRN
RED
BLK
WHT
BLU
MT
BMFP
BMMP PIN OUT
1 - BLK - L1
2 - BLANK
3 - GRN - GND
4 - BLANK
5 - BLANK
6- WHT ST1
7 - YEL
9 - RED - N
8 - BLU - 24V COM
10 - ORN - ST5
11 - BLANK
12 - BLANK
101112
1
2
3
4
56
78
9
10
1112
RED
GRN
ORN
BLK
WHT
BMFP
BLK
C/SDXW 18-36
YEL
YEL
BRN
YEL
YEL
YEL
MED
HI
XFMR
L1
PUMP
LOW
E
RRRYCL-INCC CL
OUT
F1
AQGWFRRH/
W2
BY
DHM
30
15
0
30
15
0
FAN
ON
FAN
OFF
AQ
ON
OFF
24V
COM
VALVE
N/L2
BOILER
FAN CIR
Rin
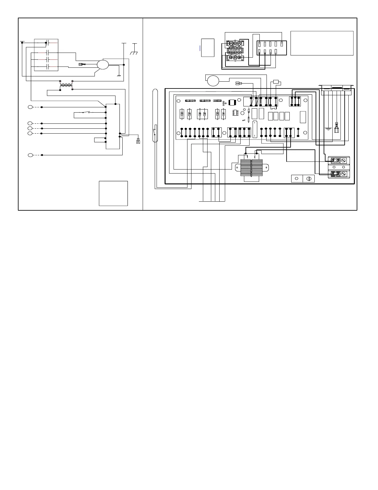
Figure 40 SDXW, CDXW, SCWW, CCWW - 18 – 37 BTU/H – Hydronic Heat – Constant Torque Blower Motor w/
Freeze Switch – No Water Pump
Subject to change without notice 61BA0067D
Copyright by Mortex Products Inc. 2019. Supersedes:
®

Table of Contents