EasyManua.ls Logo

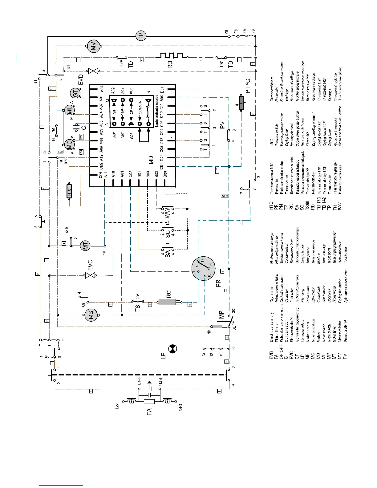
Supra SW5L65D - Technical Diagrams and Charts; SW5 L65 D Wiring Diagram

Supra SW5L65D
52 pages
Print Icon
To Next Page IconTo Next Page
To Next Page IconTo Next Page
To Previous Page IconTo Previous Page
To Previous Page IconTo Previous Page
Loading...
460612721
SW5L 65D
WIRING DIAGRAM

Table of Contents