EasyManua.ls Logo

Takagi T-H3-DV - Normal Operation; Temperature and Remote Controllers; Normal Operation General

Takagi T-H3-DV
80 pages
Print Icon
To Next Page IconTo Next Page
To Next Page IconTo Next Page
To Previous Page IconTo Previous Page
To Previous Page IconTo Previous Page
Loading...
SERVICE PROCEDURES
SERVICE PROCEDURES
On-Demand Water Heater Service Handbook for 240, 340 & 540 Condensing Models • 43
SERVICE PROCEDURES
SERVICE PROCEDURES


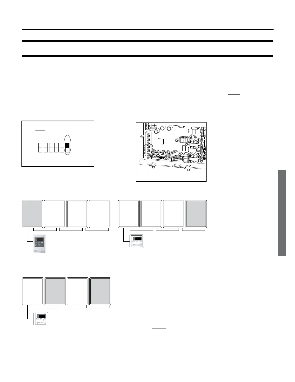
The 540 (T-H3) model can be connected to 520 (T-H2) or 710 (T-M32) models using the Easy-Link system. However, you must
change one DIP switch setting first. On each 540 (T-H3) computer board, change DIP switch no. 6 on the lower bank of
switches to the “ON” position. See Figure 35 and Figure 36.
Examples of correct Easy-Link connecons
Temperature remote controller :
9008172005 (TM-RE40)
540
(T-H3)
Previous
model*
Previous
model*
Previous
model*
Case
1
Temperature remote controller :
9007603005 (TM-RE30)
Previous
model*
Previous
model*
540
(T-H3)
Previous
model*
Case 2
Temperature remote controller :
9007603005
(TM-RE30)
Previous
model*
540
(T-H3)
540
(T-H3)
Previous
model*
Case 3
* In each case, ”Previous model”
indicates a 520 (T-H2) unit or a
710 (T-M32) unit.
520 (T-H2) units and 710 (T-M32)
units cannot be linked in the
same system.
Figure 37.
OFF
ON
1
2
3
4
5
6
2
3
4
5
The dark square is the position to
which the DIP switch must be set.
DIP switch seng on the 540 (T-H3)
(Lower bank of DIP switches)
Figure 35
.
Lower bank of
DIP switches
: 540 (T-H3)
Figure 36

Table of Contents

Other manuals for Takagi T-H3-DV

Related product manuals