EasyManua.ls Logo

TCGRx ATP-E320W - Dimensions

Default Icon
55 pages
Print Icon
To Previous Page IconTo Previous Page
To Previous Page IconTo Previous Page
Loading...
ATP Operator Instructions
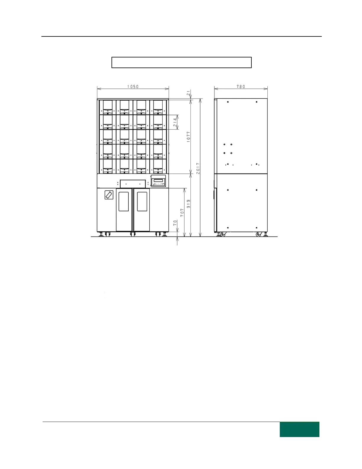
|Specifications
55
Dimensions
ATP-E320W, ATPS-E320W, ATP-E320N, ATPS-E320N

Related product manuals