EasyManua.ls Logo

Telefire GUARD-7 - Page 28

Default Icon
93 pages
Print Icon
To Next Page IconTo Next Page
To Next Page IconTo Next Page
To Previous Page IconTo Previous Page
To Previous Page IconTo Previous Page
Loading...
ADR-7000 / SAVER-7000 / GUARD-7
© 2017 Telefire Fire & Gas Detectors Ltd Revision 0.98 October 2017
Page 22 of 87
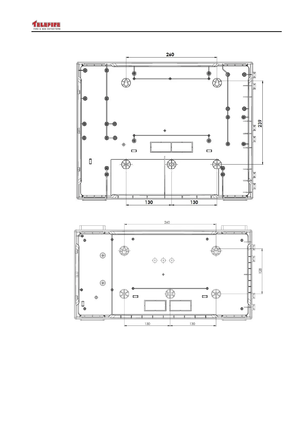
Figure 4 Mounting holes in the Chassis

Table of Contents

Related product manuals