EasyManua.ls Logo

Terex TA9 - Page 127

Terex TA9
130 pages
Print Icon
To Next Page IconTo Next Page
To Next Page IconTo Next Page
To Previous Page IconTo Previous Page
To Previous Page IconTo Previous Page
Loading...
10-9 TA9 & TA10 Dumper 0803-4 July 2011
Specifications
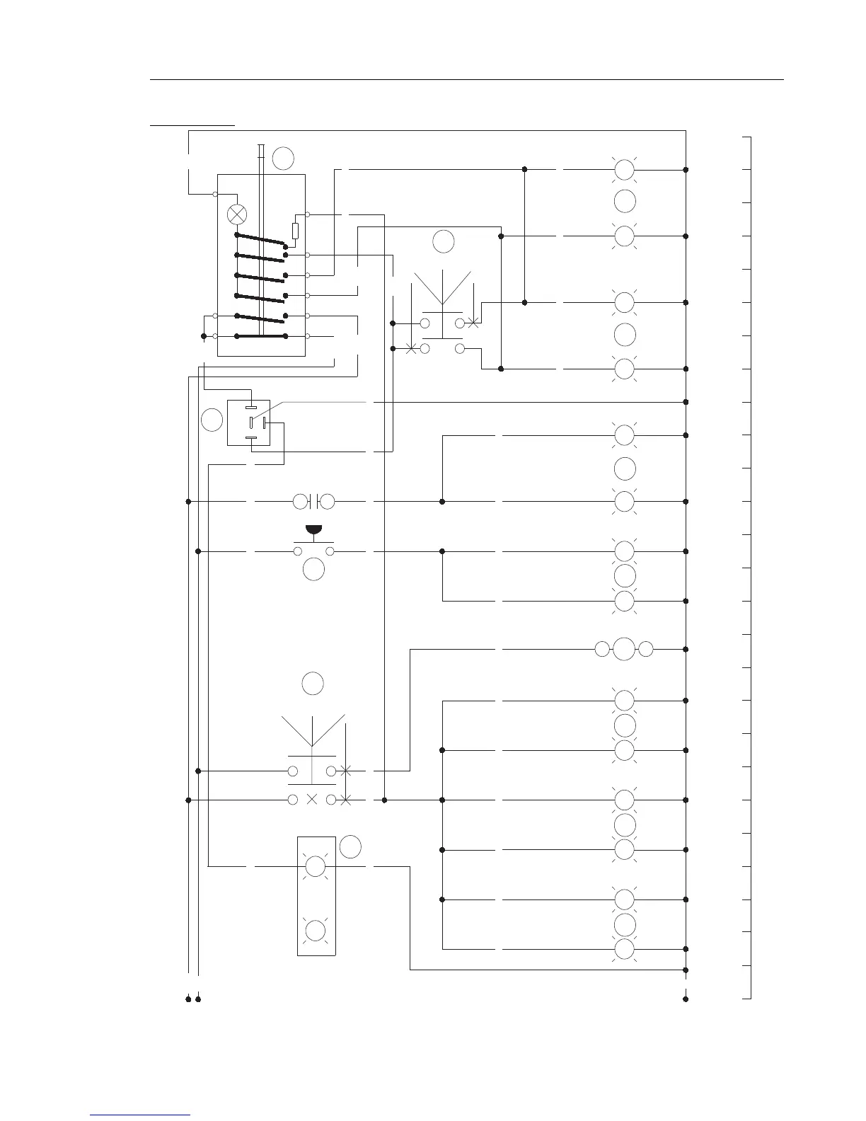
Electric Circuit
W32W32
BB
GP32GP32
GP32GP32GP32GP32
GP32GP32
R5R5
138138
8686
8585
NU28NU28
W32W32
R5R5
129129
3030
8787
B32B32
R32R32 R32R32 R32R32 R32R32 R32R32 R32R32 UR32UR32 UR28UR28 UR28UR28
NU28NU28
GN32GN32
GR32 GR32GW32 GW32
YY
R
R32R32
RR
RR
W
W
W
W
W
R
R
A
A
AA
AA
AA
W
W
49a49a
C
00
11
3131
30b30b
4949
1515
3030
LL
RR
49a49a
5858
UN32UN32
GN32GN32
R32R32
GR32GR32
GW32GW32
W32
NU28
NU28
B32B32
B32B32
GP32GP32
110110108108 160160158158156156154154152152150150148148146146144144142142140140138138136136134134132132130130128128126126124124122122120120118118116116114114112112
8005-0833C
UR32UR32 UR28UR28
31
49
49
6
7
8
9
13
10
11
12
1
ABC
2
3
4
5
ABC

Table of Contents

Other manuals for Terex TA9

Related product manuals