EasyManua.ls Logo

Thermal Dynamics 81 CUTMASTER - APPENDIX 16 C: SYSTEM SCHEMATIC, 600-Volt Units

Thermal Dynamics 81 CUTMASTER
88 pages
Print Icon
To Next Page IconTo Next Page
To Next Page IconTo Next Page
To Previous Page IconTo Previous Page
To Previous Page IconTo Previous Page
Loading...
APPENDIX A-22 Manual 0-2957
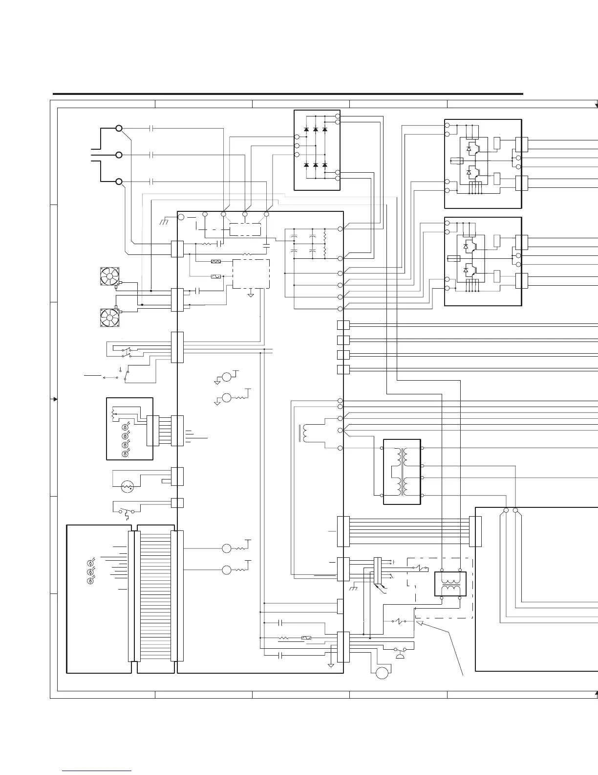
APPENDIX 16C: APPENDIX 16C: SYSTEM SCHEMATIC,
600-Volt Units
1
1
2
2
3
3
4
4
5
5
A
B
C
D
E
F
+12VDC
+18V
+18V
+18V
(22)
600VAC
3 PHASE
INPUT
TIP SENSE
P1
(77)
AC
(23)
(5)
(75)
(3)
230V
(74)
(26)
SEC
GAS
(73)
(7)
GATE
DRIVE
(72)
DC
MAIN BOARD
ASSY 19X1931
GATE
DRIVE
ON/OFF SW
CHASSIS
GND
(71)
(25)
(24)
MODE SW
CURRENT
CONTROL/
LED PCB
19X1604
(70)
W1
3
28VAC B
28VAC B
SET
TIP VOLTS
D13
D33
+12VDC
(6)
TEMP
W1
(1)
I SENSE
2
-OUT SENSE
(21)
D25
1
W1
RUN
(4)
PRI
(2)
CSR
28VAC A
CURRENT ADJUST:
20 - 80 FOR CM101
20 - 60 FOR CM81
INV ON
DRAG ON
(6)
(7)
EXTENDER
28VAC A
SW1
SW2
IGBT
HEATSINK
TEMP
TS2
INDUCTOR
TEMP
NTC
1
4
3
PIP
DC COM
8
(78)
(79)
(80)
(81)
ASSY 19X1775
P13
J12 J43
P32
P29 J29
J32
TS1
J14
P18 J18
FAN1
FAN2
M1
M2
J15P15
P11
J11
230V
(12)
(13)
(11)
(10)
(8)
(9)
INPUT DIODE
ASSY 19X2073
J25 P25
J30
P30
J31 P31
2
1
J26 P26
1
ASSY 19X1815
MAIN TRANSFORMER
J7B
J3B
J7A
J3A
P3B
P7B
P3A
P7A
E22
J23
TEST
CONN
28VAC A
28VAC B
GND
J24 P24
W1
PS1
GAS
SOLENOID
PRESSURE
SWITCH
MAIN
CONTACTOR
T5
PRI
SEC
P14 P27
J34 P34
J33 P33
P39
J39
E3E2E1
E32
E10
E27
74E25E
E15
E7
E4
E23
E20
E30
IGBT BOARD
E5
E13
E18
E8
E14
E16
E6
E12A
E17A
E19A
E21A
E12B
E17B
E19B
E21B
E9A
E11A
E9B
E11B
2
2
1
1
2
2
11
2
11
22
21
22
23
POT LOW
GATE DRIVE B RTN
GATE DRIVE B
GATE DRIVE A RTN
GATE DRIVE A
- OUT SENSE
CURRENT SENSE
CURRENT SENSE RTN
TIP VOLTS
+12V
TORCH SW
PRESS GOOD
POT WIPER
RUN/SET
TIP SENSE
CSR
24
25
26
27
28
29
30
31
ISENSE
32
33
CURRENT SENSE RTN
34
35
36
CURRENT SENSE
OVERTEMP
OVTEMP
+12VDC
DC OK
4
5
3
6
7
12
9
15
10
14
16
13
19
20
17
18
11
8
1
2
POT HIGH
+12VDC
AC OK
DC COM
TORCH SW RTN
4
5
3
6
7
12
9
15
10
14
16
13
19
20
17
18
11
8
1
2
21
22
23
24
25
26
27
28
29
30
31
32
33
34
35
36
21
22
23
24
25
26
27
28
29
30
31
32
33
34
35
36
4
5
3
6
12
9
15
10
14
16
13
19
20
17
18
11
8
1
2
4
5
3
6
7
12
9
15
10
14
16
13
19
20
17
18
11
8
1
2
21
22
23
24
25
26
27
28
29
30
31
32
33
34
35
36
7
DC COM
W1 ON
GAS ON
DC COM
DC COM
SW ON
(36)
(38)
(37)
8
6
5
2
3
1
4
7
8
3
5
2
7
1
4
6
(35)
(41)
(40)
(39)
(42)
8
6
7
1
4
5
2
3
+12V
POT LOW
OVERTEMP
POT WIPER
POT HIGH
DC
GAS
AC
8
6
7
1
4
5
2
3
J27
11
22
1
2
3
4
1
4
2
3
8
3
5
2
7
1
4
6
8
6
7
1
4
5
2
3
3
5
2
1
4
6
6
4
5
2
3
3
2
1
4
1
4
2
3
8
3
5
2
7
1
4
6
8
6
7
1
4
5
2
3
3
5
2
1
4
66
1
4
5
2
3
8
3
5
2
7
1
4
6
8
6
7
1
4
5
2
3
2
11
2
2
11
2
2
11
2
2
11
2
TORCH SW
TORCH SW RTN
PIP
PIP RTN
2
TORCH
SW
8
3
5
2
7
1
4
6
8
6
7
1
4
5
2
3
ASSY 19X1815
IGBT BOARD
GATE
DRIVE
GATE
DRIVE
E5
E6
CLOSED WHEN
PRESSURE OK
T1
K2
K1
K1
28VAC A28VAC B
(FILTERING)
1
(3/10A 600V)
(0 ohm)
F2, 0.9A,
(RESETABLE)
(STANDARD)
ATC CONNECTION
CONFIGURATION
K1
K2
CONTACTOR ON
K5
SOLENOID ON
K4
FAN
INRUSH
K4
K5
TO BIAS SUPPLY
PRESS GOOD
8
2
1
4
3
ATC RECEIVER
ATC MALE
CONNECTOR
SENSE
CURRENT
RAR OFF
(46)
L1
L2
L3
E33
R29
F1
(PILOT PCB)
(F9)
(TS2)
(TS1)
T6
SOL1
BA
11 15
6
10
PRI
SEC
SOL2
BA
5
7
5
7
WHEN OPTIONAL TORCH MOUNTED GAS SOLENOID IS USED,
SOL1 IS POWERED BY T6 ONLY ,SOL2 POWERED BY P24-1,-2
FACTORY INSTALLED OPTIONAL
TORCH MOUNTED GAS SOLENOID
ASSY 19X1913 - CM101
LOGIC
ASSY 19X1932 - CM81
ASSY 19X2285 - CM101
ASSY 19X2284 - CM81
tt
24
12
23
1314
25
27
2
4
5
6
7
1
28
24
12
23
1314
25
27
2
4
5
6
7
1
28
Art # A-07151

Table of Contents

Related product manuals