EasyManua.ls Logo

Toro 07367 - Page 61

Toro 07367
64 pages
Print Icon
To Next Page IconTo Next Page
To Next Page IconTo Next Page
To Previous Page IconTo Previous Page
To Previous Page IconTo Previous Page
Loading...
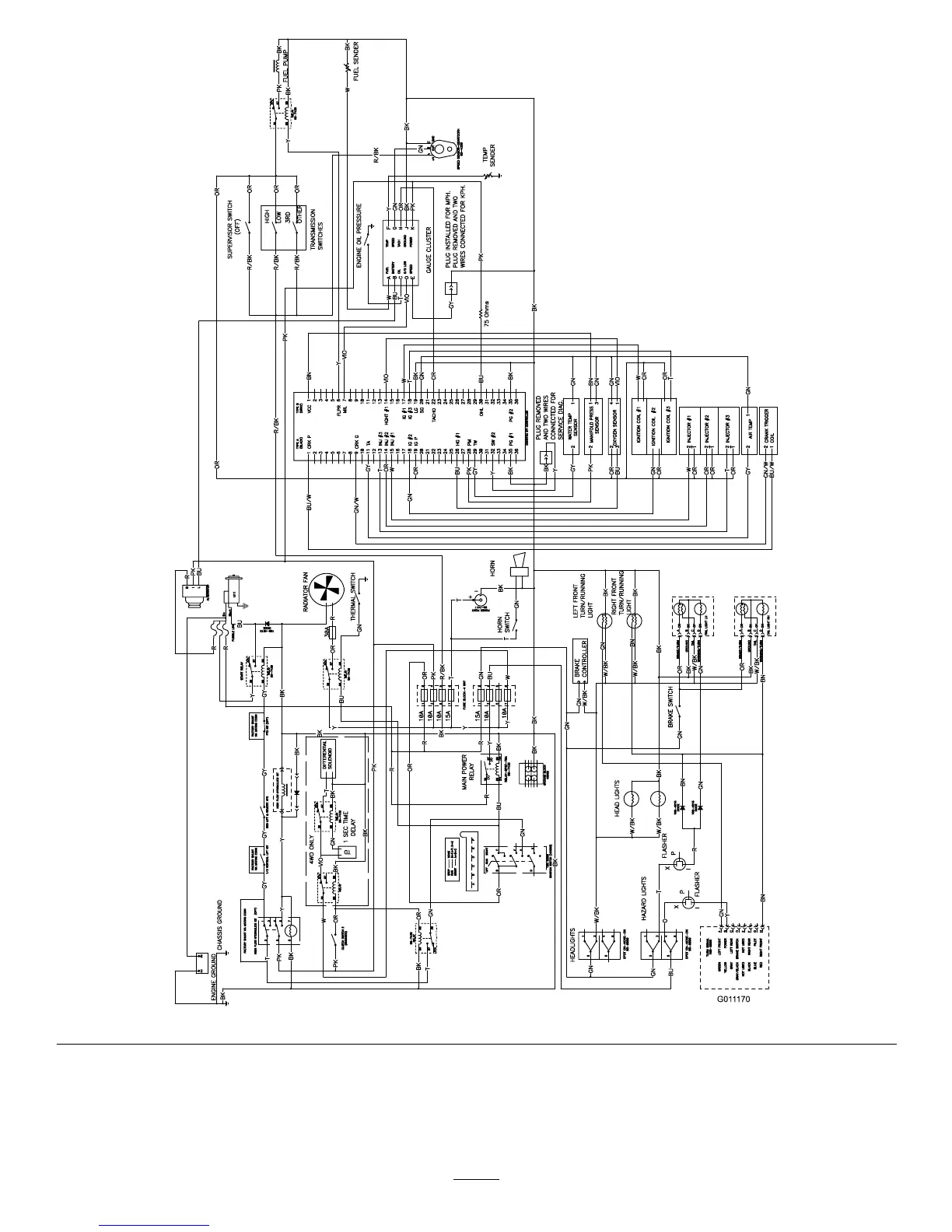
ElectricalSchematic(Rev.B)
61

Table of Contents