EasyManua.ls Logo

Trane CGAM - Page 220

Trane CGAM
276 pages
Print Icon
To Next Page IconTo Next Page
To Next Page IconTo Next Page
To Previous Page IconTo Previous Page
To Previous Page IconTo Previous Page
Loading...
220 CG-SVX17D-EN
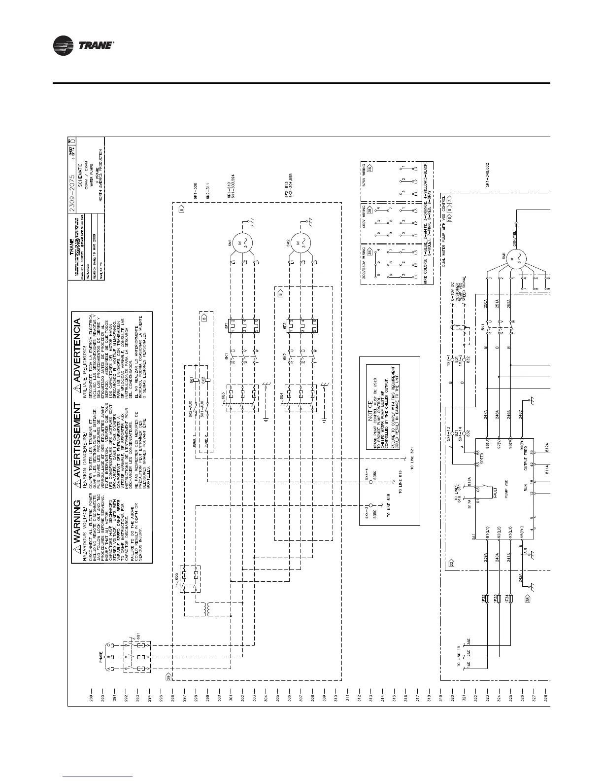
Unit Wiring
V2075-8
40-70 Ton - “V Frame” - Pump Power/Control

Table of Contents

Related product manuals