EasyManua.ls Logo

Trane CGAM - Page 35

Trane CGAM
276 pages
Print Icon
To Next Page IconTo Next Page
To Next Page IconTo Next Page
To Previous Page IconTo Previous Page
To Previous Page IconTo Previous Page
Loading...
CG-SVX17D-EN 35
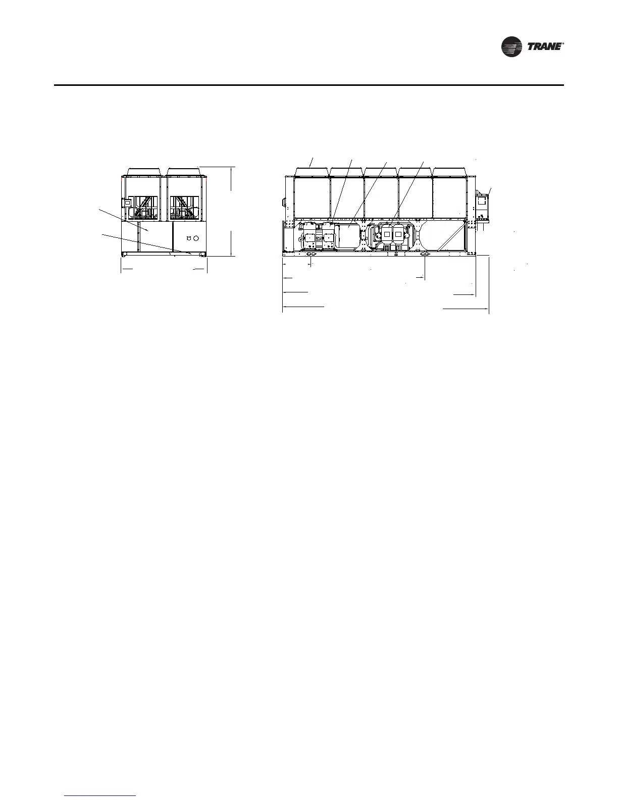
Unit Dimensions/Weights
Figure 29. Size 130 ton — pump package, buffer tank, partial heat recovery
Fan
Compressors
Buffer Tank Pump Package
Pump Package VFD
Lifting
Locations
Control Panel
Wire
Connection
92 in (2337 mm)
89 in (2261 mm)
29.6 in (752 mm)
149.8 in (3804 mm)
203.0 in (5156 mm)
Length w/ buffer tank
Length w/ PP or PHR
215.0 in (5461 mm)

Table of Contents

Related product manuals