EasyManua.ls Logo

Trophy 1802 - Page 98

Trophy 1802
112 pages
Print Icon
To Next Page IconTo Next Page
To Next Page IconTo Next Page
To Previous Page IconTo Previous Page
To Previous Page IconTo Previous Page
Loading...
92
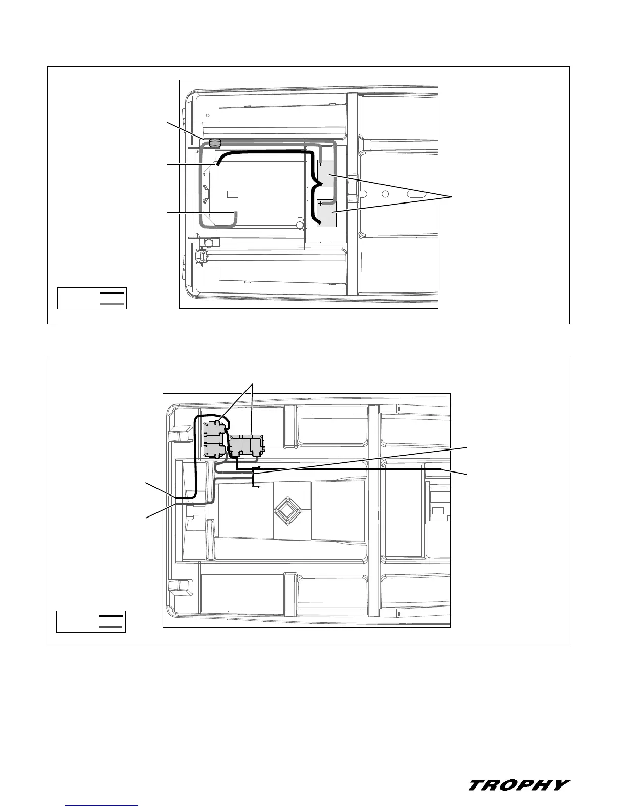
Chapter 12: Electrical System Walkaround Models Owners Manual Supplement
2352
2502
ENGINE
BATTERIES
BATTERY
SWITCH
ENGINE
GROUND
NEGATIVE
POSITIVE
NEGATIVE
POSITIVE
BATTERIES
BATTERY
SWITCH
ENGINE
ENGINE
GROUND
TO BATTERY
CHARGER

Table of Contents

Related product manuals