EasyManua.ls Logo

VAMP 150 - Connection Diagram

VAMP 150
78 pages
Print Icon
To Next Page IconTo Next Page
To Next Page IconTo Next Page
To Previous Page IconTo Previous Page
To Previous Page IconTo Previous Page
Loading...
VAMP 150 Motor protection relay
Technical Description
VAMP Ltd
38
Vamp 24h support phone : +358 (0)20 753 3264
VM150.EN005
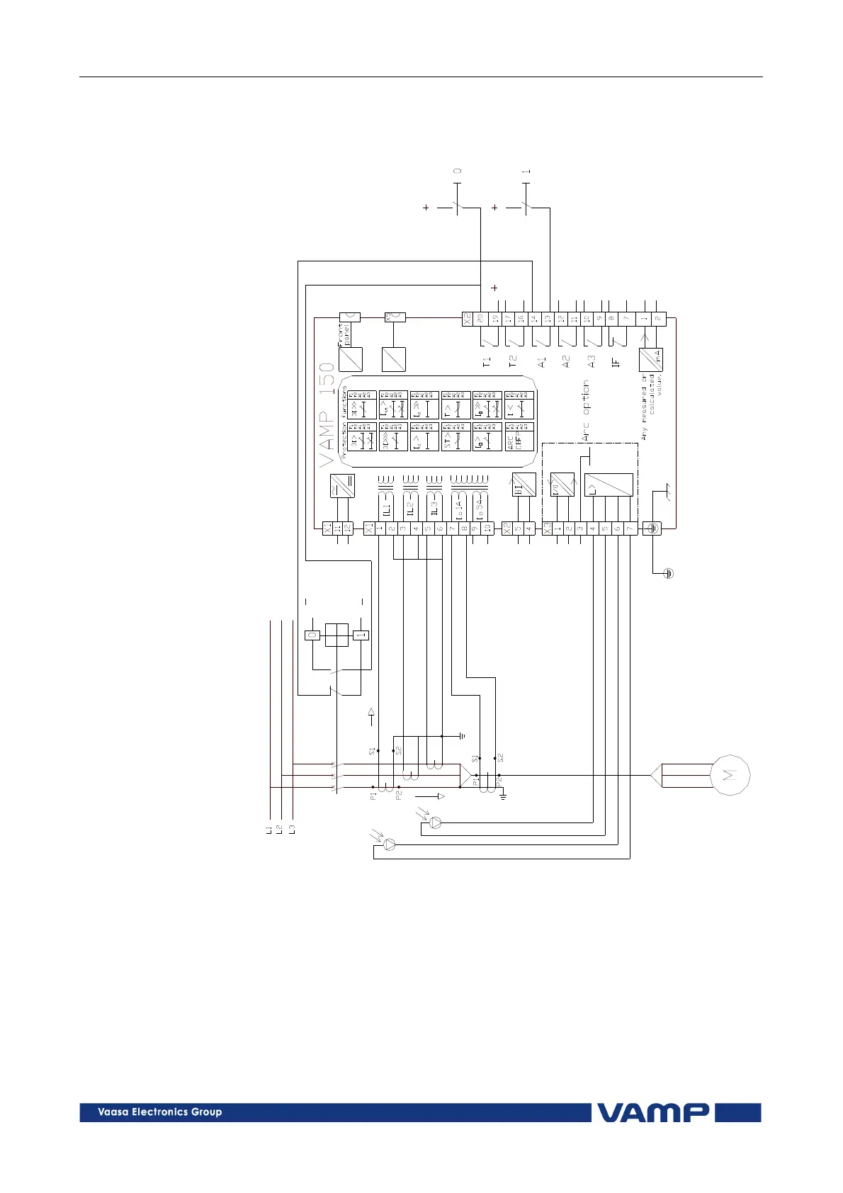
4.8. Connection diagram
Figure 4.8-1. VAMP 150 connection diagram. Relay contact positions when
no auxiliary power supply connected.

Table of Contents

Related product manuals