EasyManua.ls Logo

Vertiv CoolPhase CDU - Page 117

Vertiv CoolPhase CDU
157 pages
Print Icon
To Next Page IconTo Next Page
To Next Page IconTo Next Page
To Previous Page IconTo Previous Page
To Previous Page IconTo Previous Page
Loading...
PAGE: 2 OF 4
TO FILL OUT HEADER INFORMATION:
1. TOP LINE SHALL BE PRODUCT NAME, I.E. LIEBERT CW, LIBERT DSE, LIEBERT MINIMATE2, ETC.
a. THIS LINE OF TEXT SHALL ALWAYS BE IN THE TEXT BLOCK ABOVE THE BLACK DIVIDING LINE
WITH THE VERTIV LOGO.
b. THE TEXT IN THE PRODUCT LINE SHALL BE “ARIAL NARROW”, BOLD, SIZE 0.25”
2. FIRST LINE OF TEXT BELOW THE BLACK DIVIDING LINE SHALL BE USED FOR THE DRAWING TITLE,
I.E. CABINET DIMENSIONAL DATA, GENERAL ARRANGEMENT, COMPONENT LOCATION.
a.THE TEXT IN THIS LINE SHALL BE “ARIAL NARROW”, BOLD, SIZE 0.20”.
3. LINE UNDER DRAWING TITLE SHALL BE USED FOR THE DESCRIPTION OF, OR SPECIFIC PRODUCT
INFORMATION THAT THE SUBMITTAL AFFECTS, I.E. CW305-415, DA080 DOWNFLOW UNITS W/ EC FANS, ETC.
a.THE TEXT IN THIS LINE SHALL BE “ARIAL NARROW”, BOLD, SIZE 0.18”.
TEXT, DIMENSIONING, & REVISION INFORMATION:
1. APPROVED FONT STYLE FOR ALL SUBMITTAL TEXT AND DIMENSIONING IS “ARIAL NARROW”,
MINIMUM HEIGHT OF 0.08”
2. ALL TEXT IN FOOTER MUST BE “ARIAL NARROW” FONT SIZE 0.094”.
3. REVISION BLOCK TO BE FILLED OUT FOR EACH REVISION AFTER 0 WITH REVISION NUMBER,
EXPLANATION OF REVISION, PERSON MAKING AND APPROVING REVISION, AND DATE.
PDF CREATION (USING MICROSOFT PRINT OPTION)
1. WHEN COMPLETED, A PDF IS TO BE CREATED USING THE MICROSOFT PRINT TO PDF CREATER UNDER
THE PRINT COMMAND.
2. ONCE THE PDF HAS BEEN CREATED, THE USER IS TO OPEN IT IN ADOBE WRITER AND CREATE A SECOND
PDF WHICH WILL ALLOW THE USER TO GENERATE A BLACK AND WHITE ONLY FILE. THIS GENERATED PDF
WILL BE USED FOR PUBLICATION OF THE SUBMITTAL.
PDF CREATION (USING EXPORT OPTION)
1. WHEN COMPLETED, A PDF IS TO BE CREATED USING SAVE AS<->EXPORT<-> PDF.
2. PDF EXPORT SETTING SHOULD BE KEPT AS PER BELOW,
GENERAL SETTING -
LINECAP - ROUND
LINEJOIN - ROUND
USE PENTABLE - YES
LINESTYLE - DASHED HIDDEN LINES
3. USE PENTABLE RELEASED GLOBALLY ON V DRIVE FOR COLOR AND BW PRINTS IF AVAILABLE.
WORD DOCUMENTS (FOR TABLE CREATION ALSO)
1) WORD DOCUMENTS CAN BE IMPORTED BY INSERTING AN OBJECT, AND SELECTING THE CREATE FROM FILE, BROWSE
AND SELECT THE FILE
(DO NOT LINK THE FILE).
THIS WILL ALLOW THE USER TO EDIT THE DOCUMENT BY DOUBLE CLICKING ON IT INSIDE THE
DRAWING. A WORD DOCUMENT WILL BE USED FOR TEXT AND FOR TABLES AT THIS TIME.
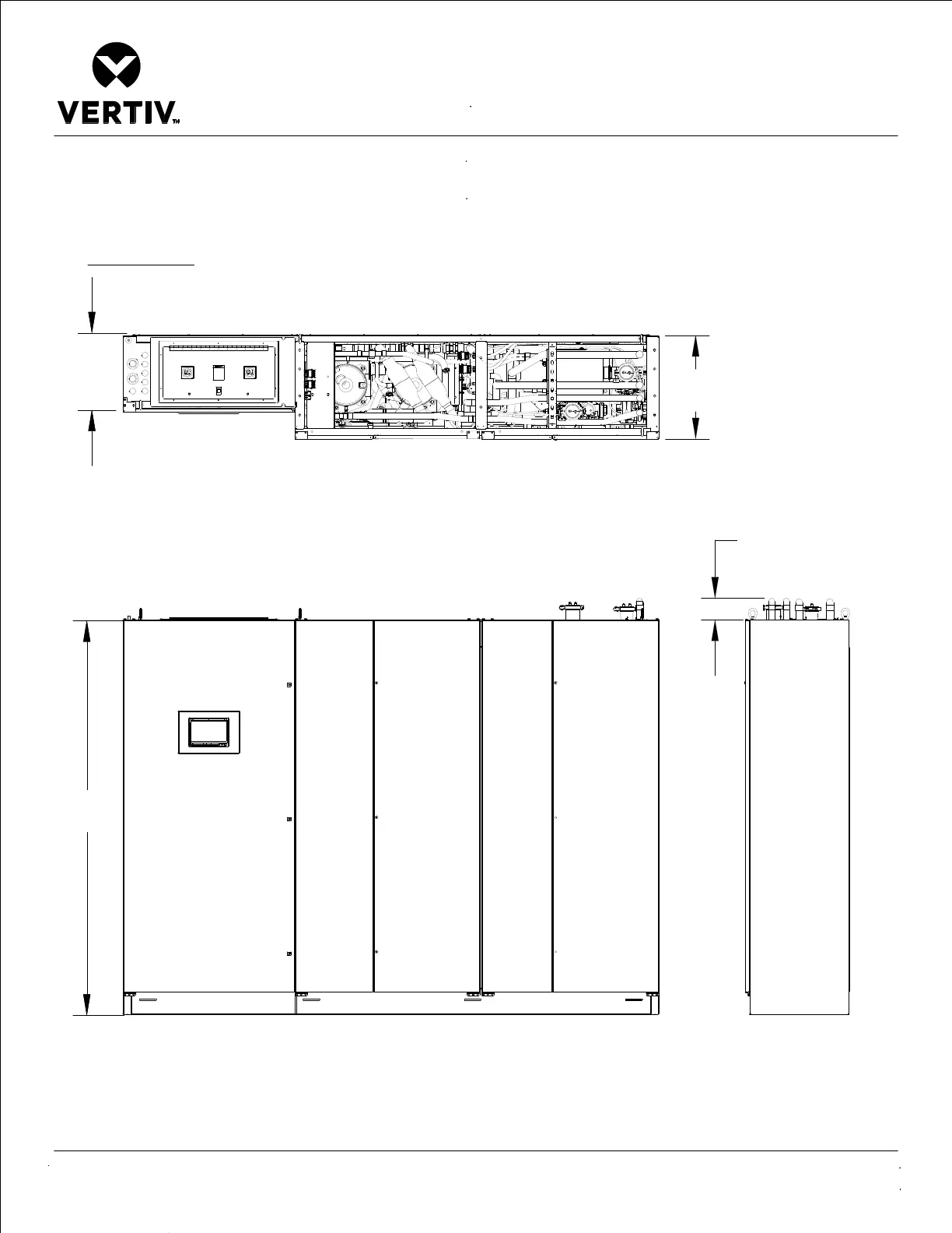
17.2
[436]
17.2
[436]
23.1
[587]
88.0
[2235]
88.0
[2235]
4.9
[123]
COOLPHASE CDU
CABINET & ANCHOR DIMENSIONAL DATA
XDM300
FORM NO. DPN004906 REV C
20000058
REV: B
REV DATE: 08/2024
TOP VIEW
FRONT VIEW
RIGHT SIDE
VIEW
LOWER MODULE
Notes:
1. All dimensions are in inches [mm].

Table of Contents

Related product manuals