EasyManua.ls Logo

Vertiv Liebert Mini-Mate2 - Free-Cooling; Optional Configurations-Prop Fan Condensing Units

Vertiv Liebert Mini-Mate2
92 pages
Print Icon
To Next Page IconTo Next Page
To Next Page IconTo Next Page
To Previous Page IconTo Previous Page
To Previous Page IconTo Previous Page
Loading...
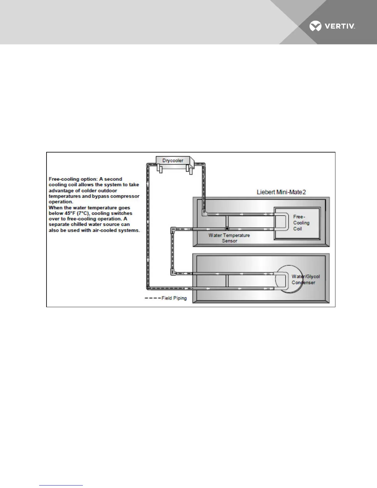
5.5 Free-Cooling
Free-cooling option includes separate cooling coil, three-way slow-close valve and separate supply and
return piping. Free-cooling is activated when the water temperature reaches a field-adjustable
temperature, typically 45°F (7°C). The valve is rated for 300psi (2068kPa) working pressure.
Air-cooled condensing units can be matched with evaporators using free-cooling coils with chilled water
sources to serve as backup cooling. When matched with a water/glycol condensing unit, a three-way
water regulating valve is recommended for the condensing unit to simplify piping to the main supply
pipes. The coil is designed for closed-loop applications using properly treated and circulated fluid. Not
available with SCR reheat options.
Figure 5.1 Free-cooling arrangement
NOTE: If free-cooling is applied to an open water tower, an optional copper-nickel (CuNi) coil is
required to prevent premature corrosion, or a heat exchanger must separate the tower water from the
free-cooling loop. The copper-nickel coil requires an extended lead time.
5.6 Optional Configurations—Prop Fan Condensing Units
Outdoor Prop Fan Condensing Units are also available in the following optional configurations:
High ambient, top discharge models for catalog capacities at ambient temperatures up to
105°F (40°C).
Quiet-Line models for low noise level conditions (below 56 dBA) and catalog capacities for
ambient temperatures up to 95°F (35°C).
Condenser coil(s) can be phenolic-coated for extended coil life in coastal areas.
Vertiv | Liebert Mini-Mate25 ton User Manual| 20

Table of Contents

Related product manuals