EasyManua.ls Logo

Viessmann B1HF - Preparing for Installation; Boiler Dimensions and Connection Points Overview

Viessmann B1HF
116 pages
Print Icon
To Next Page IconTo Next Page
To Next Page IconTo Next Page
To Previous Page IconTo Previous Page
To Previous Page IconTo Previous Page
Loading...
11
350
Ø 60.5
Ø 96
-0.5
+0.8
148
369
700
767
58
58
123 123
186
A
B C D
E
G F
1925
139
360
H
K
125
400
257
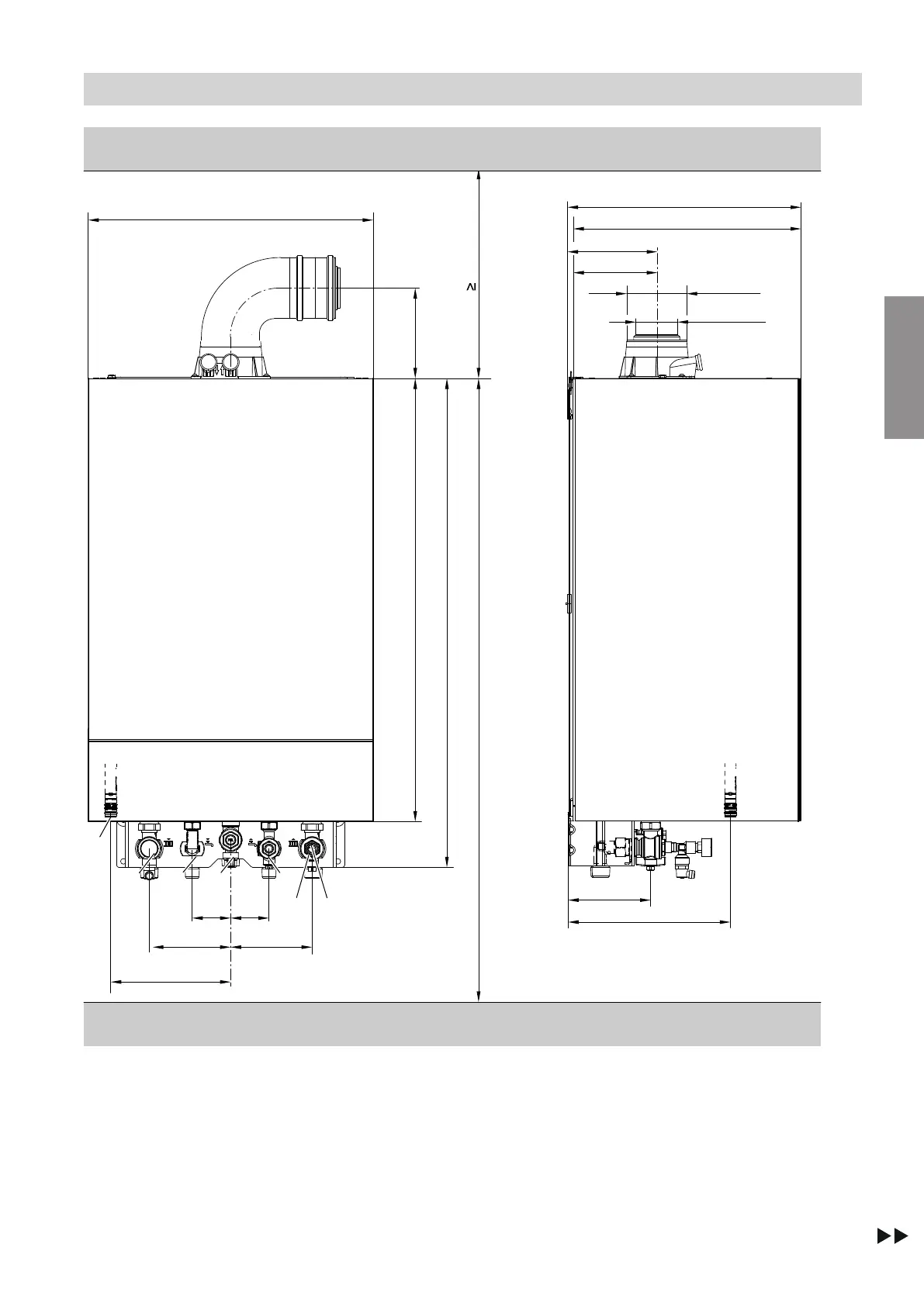
Fig. 2 Illustration shows a gas condensing combi
boiler
A
Condensate drain
B
Heating flow
C
DHW (gas condensing combi boiler)
Cylinder flow (gas condensing system boiler)
D
Gas connection
E
Cold water (gas condensing combi boiler)
Cylinder return (gas condensing system boiler)
F
Heating return
G
Filling/draining
Preparing for installation
Preparing for installation
6167586
Installation

Table of Contents

Related product manuals