EasyManua.ls Logo

Viessmann VITOPLEX 300 Type TX3A - Burner Diagrams (cont.)

Viessmann VITOPLEX 300 Type TX3A
80 pages
Print Icon
To Next Page IconTo Next Page
To Next Page IconTo Next Page
To Previous Page IconTo Previous Page
To Previous Page IconTo Previous Page
Loading...
b
c
d
g
f
e
h
a
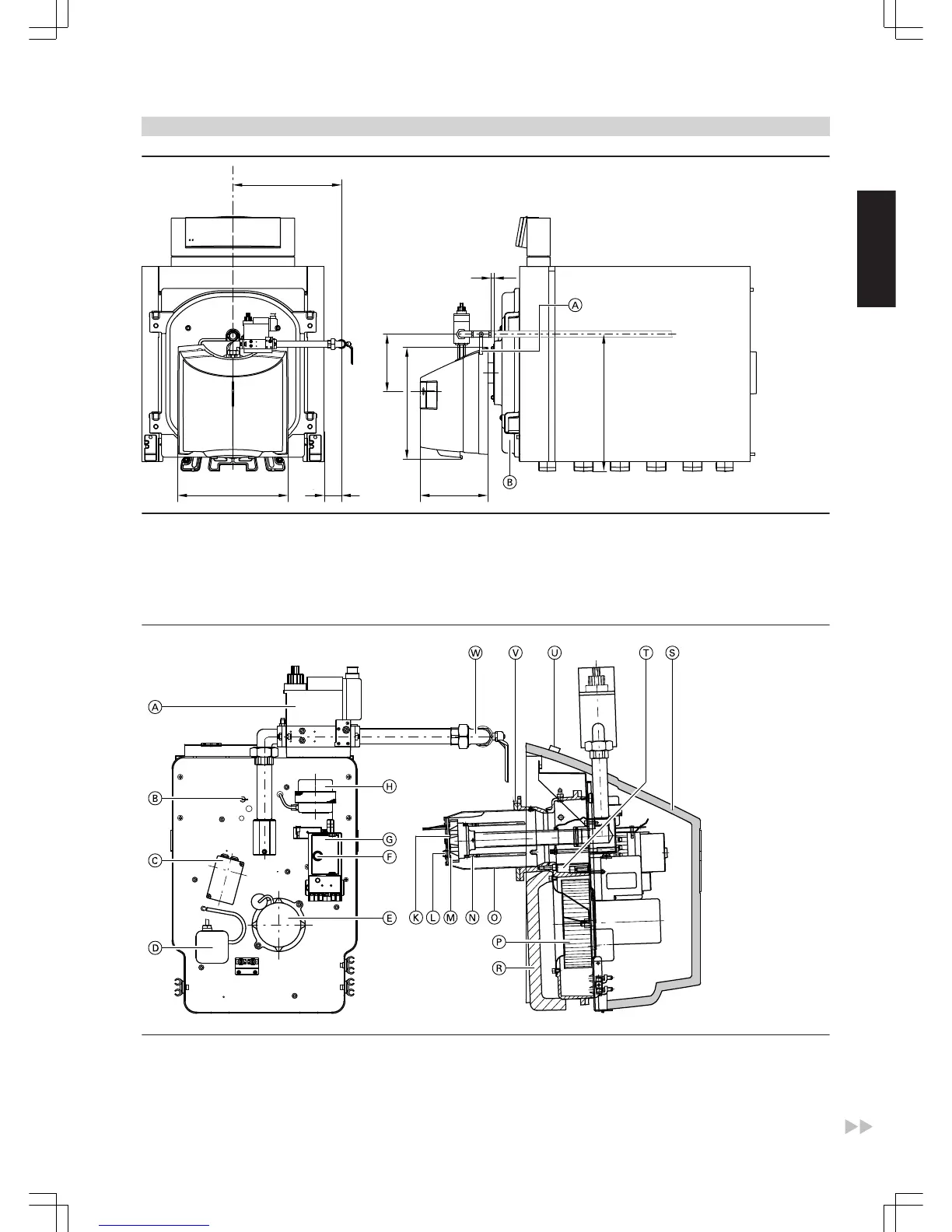
A
Gas shut-off valve
B
Boiler door
Note
The combination valve may be fitted on the r.h. or the l.h. side of the
boiler.
A
Combination valve
B
Quick-action fastener
C
Servomotor
D
Air pressure switch
E
Fan motor
F
Reset button
G
Burner control unit
H
Ignition transformer
K
Mixer assembly
L
Ignition electrode
M
Sensor plate
N
Ionisation electrode
Burner
(cont.)
OIL/GAS BOILERS
VIESMANN
17
5822 426 GB
8

Table of Contents

Related product manuals