EasyManua.ls Logo

Wacker Neuson EZ26 - Page 264

Wacker Neuson EZ26
272 pages
Print Icon
To Next Page IconTo Next Page
To Next Page IconTo Next Page
To Previous Page IconTo Previous Page
To Previous Page IconTo Previous Page
Loading...
9-32 BA EZ26 en/us* 1.0 * EZ26_01_900.fm
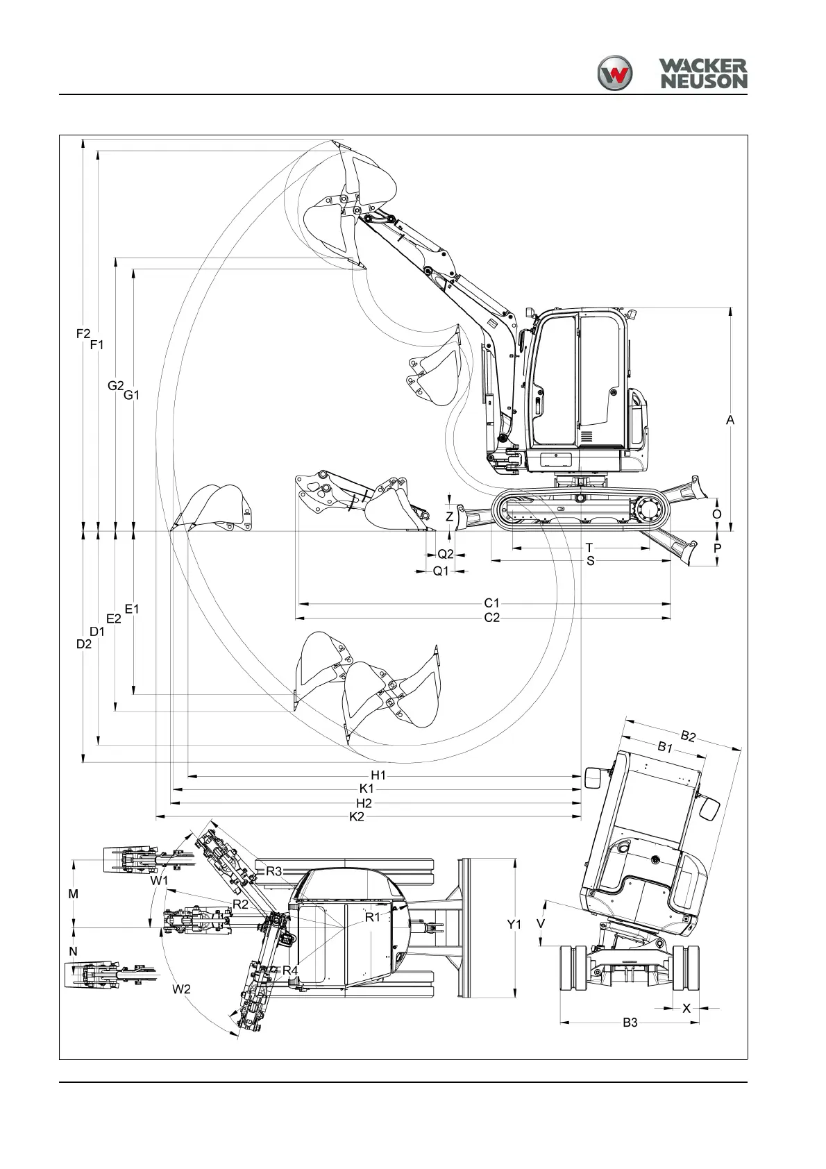
9 Technical data
EZ26 VDS

Table of Contents

Related product manuals