EasyManua.ls Logo

Worcester Greenstar Heatslave II ErP 18/25

Worcester Greenstar Heatslave II ErP 18/25
60 pages
To Next Page IconTo Next Page
To Next Page IconTo Next Page
To Previous Page IconTo Previous Page
To Previous Page IconTo Previous Page
Loading...
Installation
Greenstar Heatslave II
ErP -
6 720 813 344 (2014/09) 29
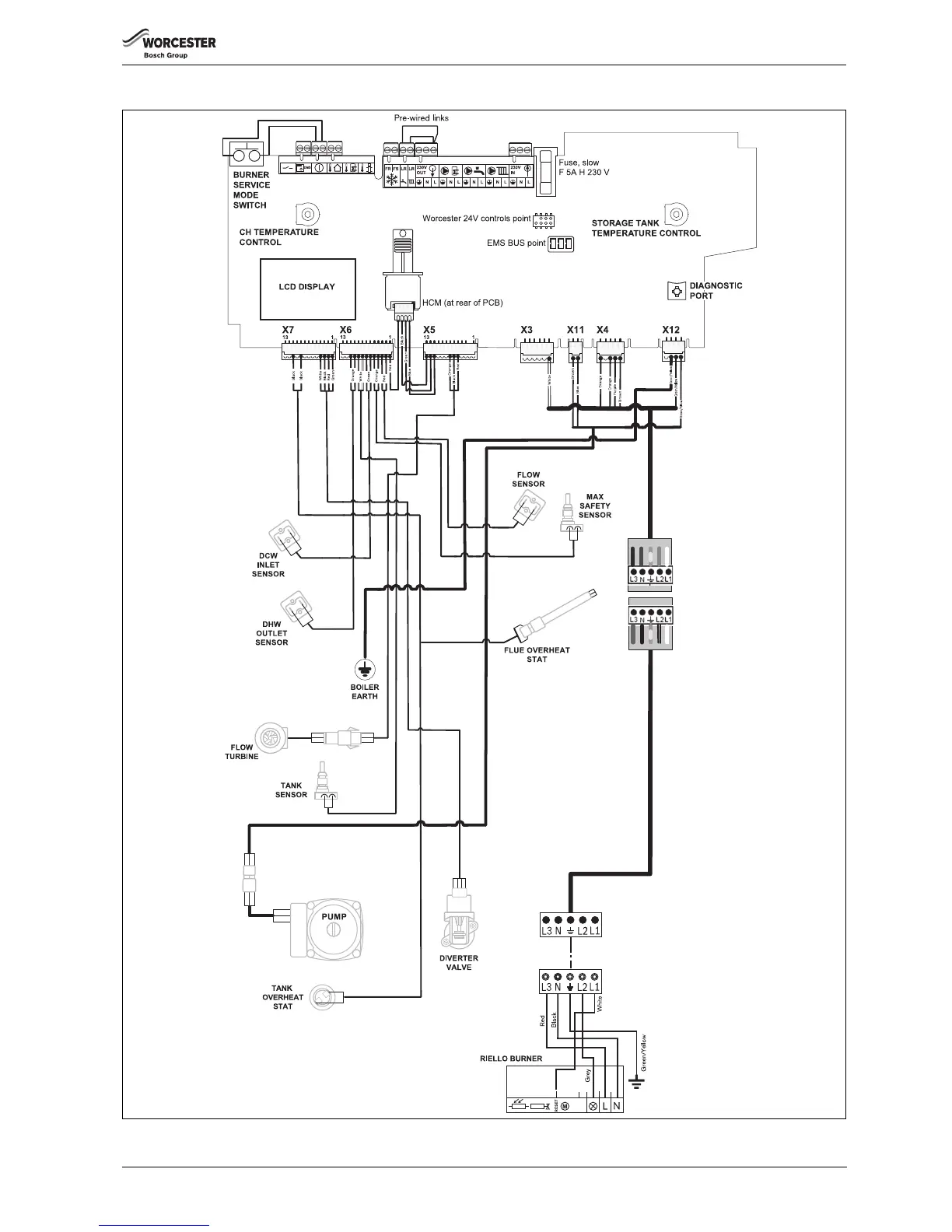
5.10 Electrical schematic
Fig. 44
6 720 805 209-24.1TL

Table of Contents

Related product manuals