EasyManua.ls Logo

YASKAWA MP3000 Series - Communications with a Mitsubishi PLC (Qna-Compatible 3 E Frame Protocol); Using I;O Message Communications with the MP3000 as the Master

YASKAWA MP3000 Series
435 pages
Print Icon
To Next Page IconTo Next Page
To Next Page IconTo Next Page
To Previous Page IconTo Previous Page
To Previous Page IconTo Previous Page
Loading...
2.7 Communications with a Mitsubishi PLC (QnA-compatible 3E Frame Protocol)
Using I/O Message Communications with the MP3000 as the Master
2-139
Ethernet Communications
2.7
Communications with a Mitsubishi PLC (QnA-compatible 3E Frame Protocol)
When using Ethernet communications between the MP3000 and a Mitsubishi Q/QnA-series PLC, use the
QnA-compatible 3E Frame protocol as the communications protocol. The QnA-compatible 3E Frame pro-
tocol allows the master to read and write the contents of slave registers.
This section describes communications when the MP3000 acts as the master. When the MP3000 acts as
the master, communications can take place using I/O message communications or the MSG-SNDE func-
tion.
Using I/O Message Communications with the MP3000 as the
Master
This section describes how to perform communications with a Mitsubishi Q/QnA-series PLC by using I/O
message communications.
QnA-compatible 3E Frame Commands
The commands that are used with I/O message communications on the MP3000 are given below.
Function
QnA-compatible 3E Frame
(Hex)
Meaning
Command Subcommand
Batch read from the device
memory
0401 0000
Reads bit devices in units of 16 points.
Reads word devices in units of one point.
Batch write to the device mem-
ory
1401 0000
Writes bit devices in units of 16 points.
Writes word devices in units of one point.
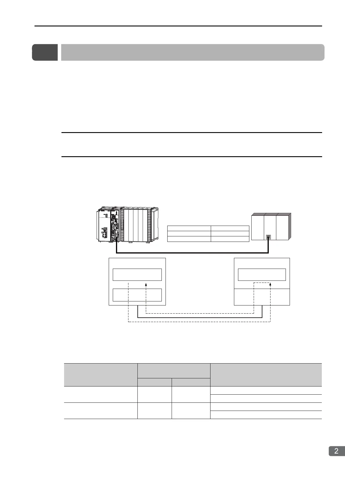
218IFD
Ethernet
Ethernet
MP3000
MP3000
(local station)
I/O message communications
(no ladder programming)
QnA-compatible 3E Frame protocol
Q/QnA-series PLC
Automatic reception
(no ladder programming)
Master
Slave
Communications Protocol
QnA-compatible 3E Frame
Connection Type
TCP or UDP
Data Code
Binary or ASCII
Mitsubishi MELSEC
Q/QnA-series PLC
(remote station)

Table of Contents

Other manuals for YASKAWA MP3000 Series

Related product manuals