EasyManua.ls Logo

YASKAWA MP3000 Series - Using I;O Message Communications with the MP3000 as the Master

YASKAWA MP3000 Series
435 pages
Print Icon
To Next Page IconTo Next Page
To Next Page IconTo Next Page
To Previous Page IconTo Previous Page
To Previous Page IconTo Previous Page
Loading...
2.8 Communications with an OMRON PLC (FINS Communications Service)
Using I/O Message Communications with the MP3000 as the Master
2-204
Using I/O Message Communications with the MP3000 as the
Master
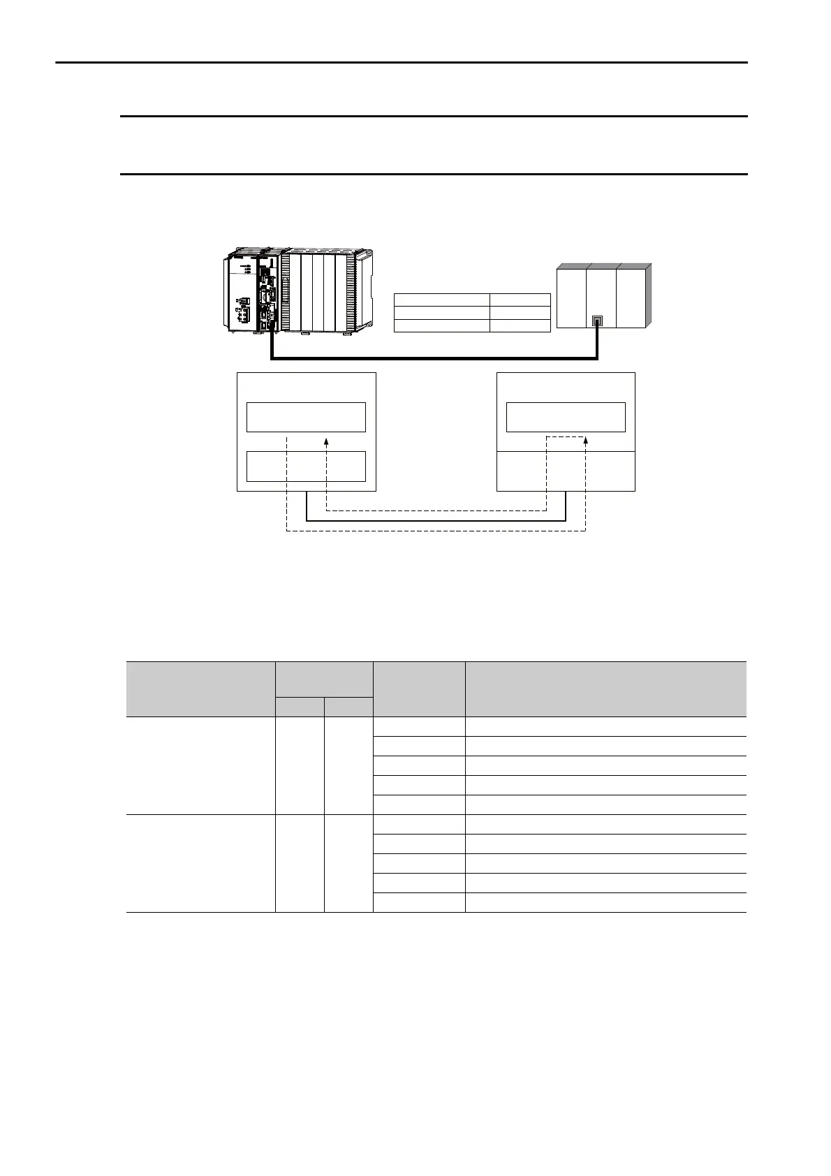
This section describes how to communicate with an OMRON PLC by using I/O message communications.
FINS Commands
The FINS commands that are used with I/O message communications on the MP3000 are given below.
Check that the command codes and I/O memory types that are listed in the following table are usable with
the OMRON PLC slave.
Name
Command
Code (Hex)
I/O Memory
Type (Hex)
Meaning
MR SR
Reading data from an I/O
memory area
01 01
B0 Reads CIO Area words.
B1 Reads Work Area words.
B2 Reads Holding Area words.
B3 Reads Auxiliary Area words.
82 Reads DM Area words.
Writing data to an I/O
memory area
01 02
B0 Writes to CIO Area words.
B1 Writes to Work Area words.
B2 Writes to Holding Area words.
B3 Writes to Auxiliary Area words.
82 Writes to DM Area words.
Ethernet
FINS
Ethernet
MP3000
218IFD
Binary
MP3000
(local station)
OMRON CS/CJ/CP-series PLC
(remote station)
Master Slave
Communications Protocol
Connection Type
TCP or UDP
Data Code
I/O message communications
(no ladder programming)
CS/CJ/CP-series PLC
Automatic reception
(no ladder programming)
FINS protocol

Table of Contents

Other manuals for YASKAWA MP3000 Series

Related product manuals