EasyManua.ls Logo

YASKAWA MP3000 Series - 1.2 System Configuration Examples

YASKAWA MP3000 Series
435 pages
Print Icon
To Next Page IconTo Next Page
To Next Page IconTo Next Page
To Previous Page IconTo Previous Page
To Previous Page IconTo Previous Page
Loading...
1.2 System Configuration Examples
Configuration with the MP3200
1-3
Outline of Communications
1.2
System Configuration Examples
Configuration with the MP3200
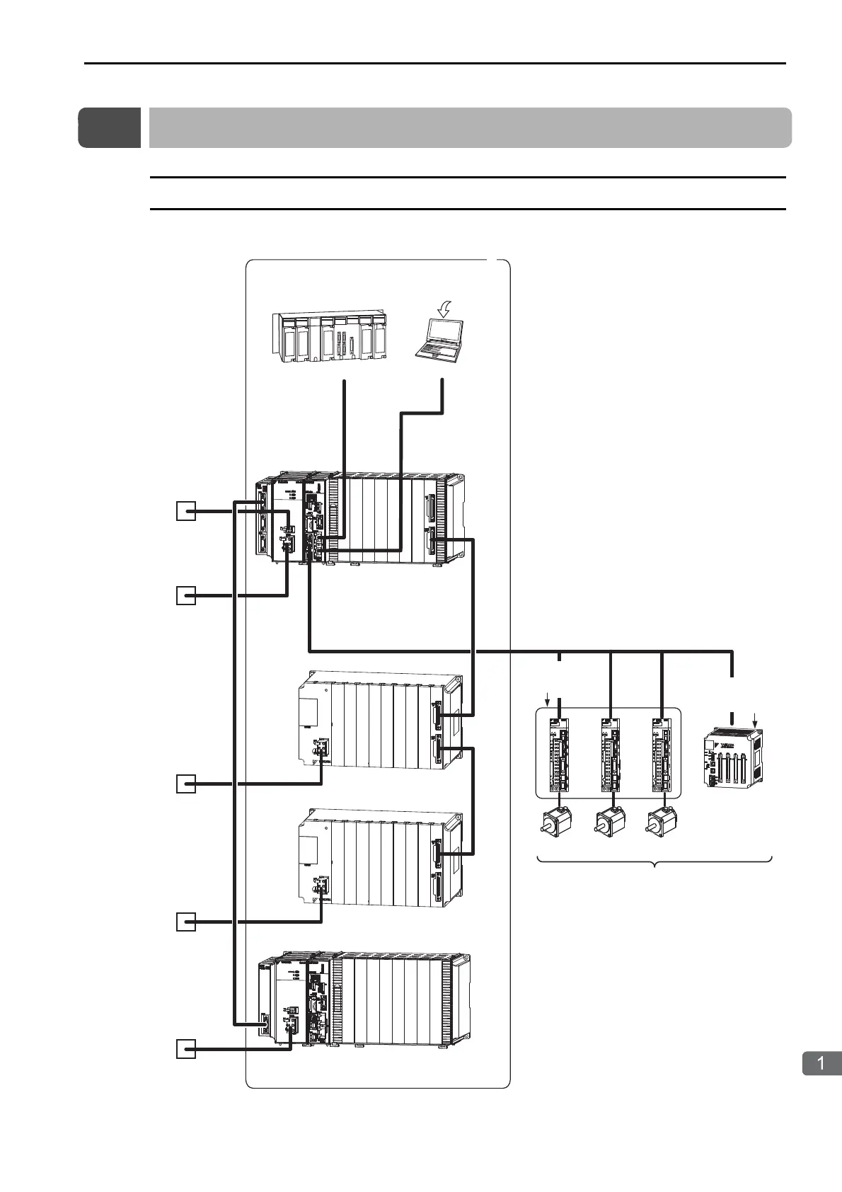
The following figure shows a typical system configuration.
* This manual primarily describes this area.
MP
2200
MBU-02
PO
W
ER
DC
EXIOIF
MP2200
MBU-02
PO
W
ER
DC
EXIOIF
PC
Ethernet
Ethernet
Up to 42 stations, including I/O (Up to 32 stations can be Servos.)
Host PLC
I/O
Servomotor
Servomotor
Servomotor
MP3200
Reference-type SERVOPACK
with MECHATROLINK-III
Communications
I/O Module with
MECHATROLINK-III
Communications
MPE720 Integrated
Engineering Tool Version 7
24-VDC power
supply, AC power
supply, or status
monitoring device
24-VDC power
supply or
AC power supply
MECHATROLINK-III
EXIOIF
*
24-VDC power
supply or
AC power supply
24-VDC power
supply or
AC power supply
24-VDC power
supply or
AC power supply

Table of Contents

Other manuals for YASKAWA MP3000 Series

Related product manuals